글
초량2구역 재개발 : 입지, 특징 그리고 최저 소액 매물

안녕하세요
북항 바다 조망
초량2구역 재개발 : 소액 매물 & 진행 상황 체크해서 소개해 드리겠습니다.


1. 초량2구역 재개발 : 사업 간략, 최근 진행 상황 :
변화하는 원도심
초량2구역 재개발 은
[ 북항바다조망 + 북항재개발 함께 큰 변화 품은 + 진행대비 시세최저 + 대단지 + 소액투자 ]
초량역, 부산역 그리고 북항 일대를 바라보는 구봉산의 아래자락으로
부산에서 가장 큰 변화를 품은 북항재개발과 함께 원도심 변화의 가운데 위치하여
현재의 모습 보다는 미래의 모습이 기대되는 재개발 구역 입니다.
[ 최근 해수부 이전 -> 원도심의 주거 수요 증가 -> 인접 신축 대단지 아파트 -> 현재 관심이 증가 하는 곳 ]
또한, 최근 해수부 이전을 시작으로 향후 원도심 신축 주거 수요의 증가가 예상되어
조금더 기대되고 있습니다.
* 전반 진행 사항 간략 ::
- 2024년 12월 16일 : 새로운 시공사 변경 선정 : 현대 + SK 컨소시엄
- 2025년 3월 21일 : 조합원 종전자산 감정평가 통지
- 2025년 6월 23일 ~ 8월 21일 ~ 9월 10일 조합원 분양 신청 완료
-> 2025년 12월 : 정기총회 예정 ( 주요안건 조합장 임기 만료로 선임 )
-> 2026년 상반기 : 관리처분계획인가 신청 예상

2. 초량2구역 재개발 : 소액 매물 소개 :
그럼, 북항바라보는
초량2구역 재개발 : 진행대비 시세 낮은 소액 매물 소개해 드리겠습니다.



3. 초량2구역 재개발 : 재개발 전반 사업 개요 및 입지 :
큰 변화 품은 원도심
초량2구역 재개발은
1) 가장 큰 특징 : 북항재개발과 함께 큰 변화 품은 + 최근 해수부 이전
부산역 맞은편 구봉산의 아래 자락 산복도로 바로 윗쪽으로 위치해
인접한 부산역과 북항재개발 일대를 한눈에 내려다보고 있습니다.
북항재개발
부산의 미래를 담보할 북항재개발과 함께 변화할 초량2구역이 포함된 원도심 일대는
서로 연계하여 부산에서 가장 큰 변화가 기대되고 있는데
현재 한창 개발중에 있는
북항재개발 1단계의 넓은 수변공원과 오페라하우스 등 전반 시설의 이용이 편리하며
또한, 북항재개발 비지니스 중심센터가 들어서면
주요 관광서, 대기업, 중소기업등에서 입주를 하게 될 것이며 이 곳에 근무하는
직주 근접 배후 주거지로 주거 수요 또한 중가하며
최근 해양수산부가 부산으로 이전하고 근무하게될 사무소가 부산진역 앞으로 정해지게 되면서
약 900여명이 조금 되지 않은 공무원들과 그 가족들까지 고려하면
직주 근접의 신축 주거 아파트가 향후 필요할 것으로 주거 수요는 더 증가할 것으로 보입니다.

2) 사업규모 / 사업성
부산 원도심 중구, 동구에서
가장 큰 규모 1815세대의 대단지로 진행중에 있으며
전체 세대수 대비 조합원 비율은 약 47%로
최근 초기 구역들의 높은 비율과 비교하여 좋은 사업성을 가지고 있습니다.
( 84타입 이상 늘리는 설계 변경 예정 )
3) 실거주 환경
[ 학교 ] 동일초등학교가 바로 아래 접한 초품아 단지가 될 예정이며
그 아래로, 부산중, 부산서중, 경남여중, 부산고등 여러 우수 학교들이 있아 좋습니다.
[ 대중교통 ] 단지 바로 앞에서 서면, 남포등, 부산역등으로 바로 이동 가능한 버스 노선이 있으며
마을 버스 5분이면 초량역, 부산역 등으로 이동하여 지하철 1호선 이용도 가능합니다.
[ 상권, 인프라 ] 아래쪽으로 초량육거리 인근의 많은 상가들과 초량 전통시장이 있교
5분이면 특별한 부산역 상권의 이용도 편리하고,
10여분이면 남포동, 광복동으로 이동도 가능하여
롯데백화점, 롯데마트, 자갈치시장, 국제시장, 깡통시장 등 원도심의 상권 역시 편리합니다.


4. 초량2구역 재개발 : 시공사 주요 제안 체크 :
힐스테이트 SK VIEW 부산항 디오션
현대건설과 SK에코플랜트 컨소시엄으로 시공사 변경 선정되었습니다.
1) 현대 + SK 사업 및 특화 제안

2) 조합원 특별 제공 품목




5. 초량2구역 재개발 : 북항재개발과 연계된 원도심의 변화 간략 :
향후 부산에서 가장 큰 변화를 품은
북항재개발과 연계하여 원도심 역시 큰 변화가 있을 예정으로
부산 도심 재창조 마스터 플랜 자료를 통해 간략하게나마 이를 가늠해 볼수 있습니다.


6. 초량2구역 재개발 : 타입별 세대수 + 조합원 분양 신청 결과 + 분양가 :
원도심 최대 규모 1815세대의 대단지에
전체 세대수 대비 조합원 비율 역시 약 47%로 낮아 우수한 사업성을 가지고 있습니다.
조합원 분양신청 통지서 기준
- 조합원 분양가 약 1400정도(평균 1387), 예상 일반 분양가 2300만,
- 공사비 평당 7,199,000원 추정 비례율 105%로 제시 되었습니다.


7. 초량2구역 재개발 : 사업 간략 재정리 :
대단지, 큰변화 원도심, 소액투자처, 진행대비 시체 최저
부산에의 미래를 담보하고, 가장 큰 변화가 있을 북항재개발과 함께 큰 변화
아름다운 북항 바다 조망
+
최근 해수부 이전 호재



'렛츠부동산 > 재개발' 카테고리의 다른 글
| 광안A구역 재개발 : 입지, 특징 그리고 현재 진행상황 체크 (0) | 2025.11.08 |
|---|---|
| (사옥추천) 급매 매수한 가격보다 싸게 부산역 인근 대로변 7층 올근생 상가 건물 빌딩 (0) | 2025.11.07 |
| 덕천3구역 재개발 : 소액 매물 & 구역 지정 고시 소식 (0) | 2025.11.04 |
| 가야1구역 재개발 : 조합원 재분양신청 방법, 포인트 + 매물 (0) | 2025.11.03 |
| 범천4구역 재개발 : 확정감정가 최저 매물 & 조합원 분양 신청 소식 (0) | 2025.11.01 |
글
복산1구역 재개발 : 소액 토지 or 마피 매물

안녕하세요
분양신청 마감
복산1구역 재개발 : 최근 소식과 소액 토지 or 마피, 무피 매물 소개해 드리겠습니다.


기대되는
복산1구역 재개발 은
전통적 주거 우수 지역인 동래구에 위치하며
문화재를 품고 있어 진행에 있어 다소 시간이 더 소요되는 불확실성 때문에
그 가치에 비해 상당히 저평가되어 매력적인 재개발 구역입니다
최근 10월 27일까지 조합원 분양신청을 종료하고 정리중에 있으며
이후는 각 조합원 배정 타입 통지 및 관리처분계획인가를 준비하게 됩니다.



1. 최저 매매가 소액 토지 or 무피 매물 소개 : 복산1구역 재개발 :
그럼, 기대 되는 미래 가치
동래구 복산1구역 재개발 추/천/드/리/는 소액 토지 or 무피 매물등 소개해 드리겠습니다.


2. 각 타입별 세대수 : 복산1구역 재개발 :
전체 4300여세대의 대단지로 진행중에 있으며
중대형 평형의 비율이 높고
문화재를 품고 있고 이에 맞춘 특화 설계로 진행되어 다소 다양한 타입들이 있습니다.




3. 문화재 품은 차별적 가치 검토 : 복산1구역 재개발 :
문화재 품은
복산1구역 재개발
복산1구역 주변 일대는
오래된 명당터로 복천 고분군을 비롯하여
예로부터 문화재가 자주 출토되어 공사중에 문화재가 나올 것으로 예상되어
문화재와 함께하는, 문화재 품은 재개발 구역으로 불리웁니다.
****
문화재를 품어
진행과정에 있어 다소 시간과 비용이 추가적으로 발생하겠지만
과거와 현재가 더불어 함께 할수 있도록
잰행과정에서 조금 더 세심한 주의와 관심을 가지고 진행이 필요합니다.
이에
조합 및 조합원분들 입장에서는
진행과정에서 - 추가적인 비용과 시간의 문제가 있을수 있지만
진행후에는 - 넓은 녹지공간과 문화재와 함께 하는 역사/문화/자연을 품은 아파트 단지로 거듭나
분명한 경쟁력과 차별적 가치를 가지게 됩니다.




4. 구역 전체 상세 정보는 아래 페이지를 참고 부탁드립니다 : 복산1구역 재개발 :
새롭게 접수된 매물 정보를 빠르게 공유 드렸고
구역 전체 상세 정보는 기 포스팅한 아래 페이지를 참고 하시면 되십니다.
https://blog.naver.com/nackyeop/224059074175
(관처로) 복산1구역 재개발 : 분양신청마감과 이후 절차 + 소액 1.7 토지 or 마피 주택 매물
안녕하세요 로이의렛츠부동산 입니다. JAK 제이에이케이 부산 부동산 중개법인(주)은 부산 최초로 재개...
blog.naver.com
복산1구역 및
부산 전역 재개발에 대해 궁금하신 사항은 방문 또는 연락주시면 자세히 설명 드리겠습니다.

고맙습니다.
건강한 하루 하루 되십시오.
입주권 및 분양권을 비롯하여
부산 경남 건물 토지 상가 주택 등 부동산 물건 투자 및 물건 접수 받습니다.
[ 부산, 양산, 경남 / 상가 / 건물 / 토지 / 재개발 / 재건축 전문으로 신속하고 정직하게 거래 합니다. ]
[ 매수 / 매도 / 임대 물건 접수 받습니다. ]
글
김해 율하 중심 상권 위치한 3층 스타벅스 건물 매매 : 부산, 경남 상가
안녕하세요
김해 율하 신도시
중심상권 위치한 스타벅스 입점된 상가 건물 소개해 드립니다.


오늘 물건은
다른 설명 크게 필요 없이
스타벅스가 입점되어 있다는 것
그 것만으로 상권이 이미 분석이 되어 있고 영업 이익을 고려할 수 있다는 의미가 되며
또한, 이 것만으로 상가의 가치를 좀더 높게 만들어 줍니다.
( 특히나, 오늘 포스팅 은 짧습니다.)
그럼
오늘 부산 스타벅스 입점된 상가 건물 제원 소개해 드리겠습니다.
- 스타벅스 입점된 것만으로 이미 가치 입증
- 김해 율하신도시 2만여 배후세대의 중심 상권에 위치
- 은행 감정가 29억 9000보다 조정되어 낮은 매매가
- 1층 스타벅스 그리고 위로는 다가구로 구성

'렛츠부동산 > 상가,건물,상가주택' 카테고리의 다른 글
| 광안동 역세권 이쁜 정원 가진 2층 주택 or 올근생 건물 빌딩 매매 (0) | 2025.10.27 |
|---|---|
| (부산상가) 부산역 역세권 리모 추천 꼬마 숙박시설 / 모텔 건물 매매 (0) | 2025.10.22 |
| 동래역 명륜1번가 - 메인 위치 - 2층 꼬마 상가 건물 빌딩 매매 (0) | 2025.10.16 |
| (부산 원룸 통매매) 알짜 원룸 통 건물 빌딩 급매 매물 : 동래, 광안동, 부곡동 (0) | 2025.10.14 |
| 중앙역 초역세권, 북항재개발 혜택지 - 알차디 알찬 10층 올근생 상가 건물 빌딩 (0) | 2025.10.09 |
글
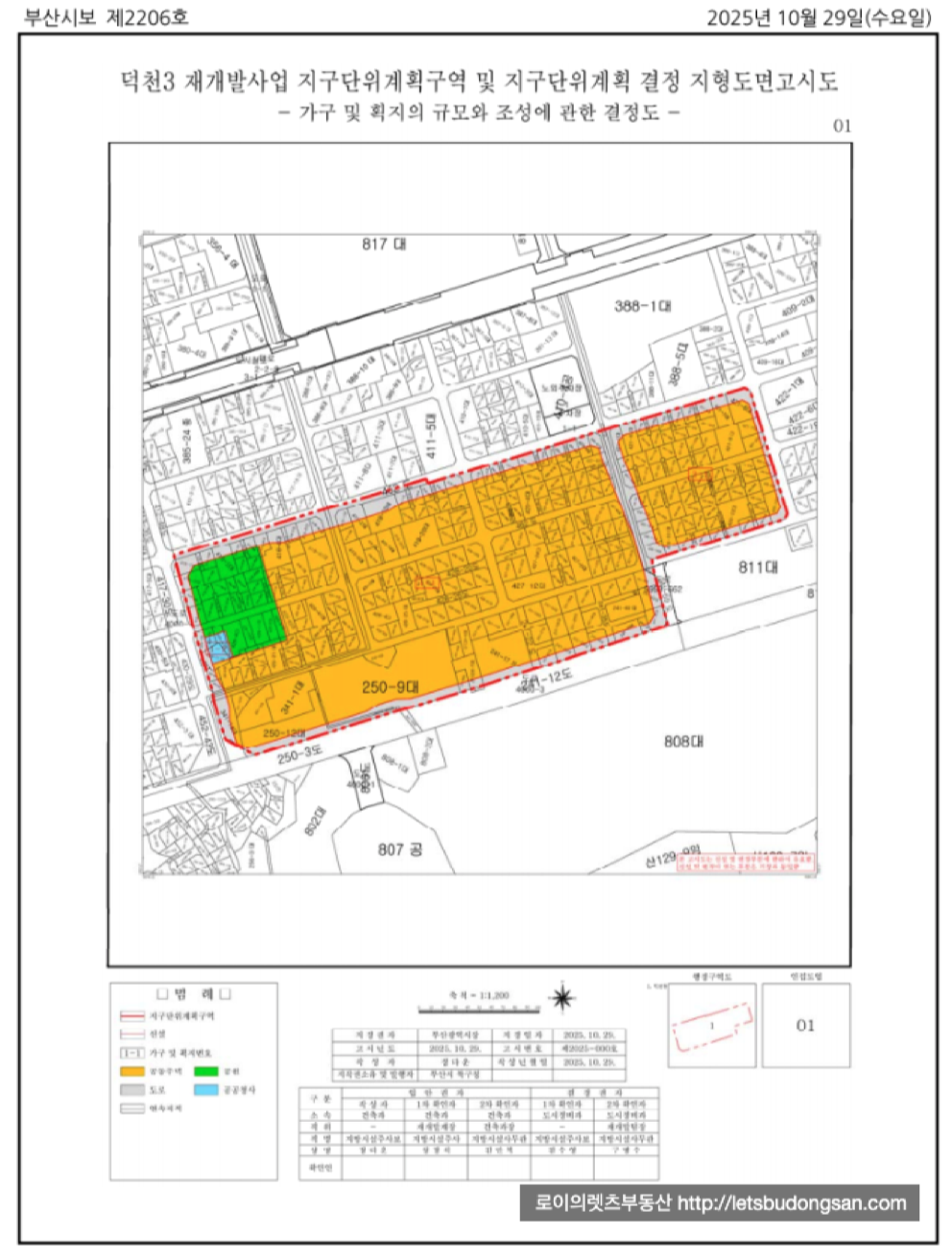
덕천3구역 재개발 : 소액 매물 & 구역 지정 고시 소식

안녕하세요
정비구역 지정고시
덕천3구역 재개발 : 소액 매물 & 구역 지정 고시 소식 소개해 드리겠습니다.
소액투자처
덕천3구역 재개발 은
기다리고 기다리던
2025년 10월 29일 정비계획 결정 및 정비구역 지정 고시가 되었습니다.
이제 조합설립을 위해 추진위 승인를 받고
주민설명회와 창립총회를 거쳐 조합설립인가로 진행될 예정입니다.



1. 덕천3구역 재개발 : 현 최/저/소/액 매물 :
그럼,
덕천3구역 재개발 : 최/저 소/액 매물 소개해 드리겠습니다.
* 부산 최저 매매, 인수가로 매수 및 보유에 부담이 작고 향후 상승폭도 기대할 수 있습니다.


2. 덕천3구역 재개발 : 재개발 사업 개요 및 입지 :
구역지정고시
덕천3구역 재개발은
1) 역세권 / 위치. 교통
부산 지하철 3호선 숙등역 곁에 둔 초역세권 이며
- 지하철 3호선 : 수영, 연산동, 종합운동장, 사직동, 숙등, 덕천, 구포. 대재 로 부산을 관통하는 노선
시내로 - 덕천초읍 터널 (만덕3터널)이 개통되어 교통체증을 피해 사직동, 연산동 등으로 접근이 개선되었고
시외로- 덕천IC가 바로 접해 있어 남해 고속도로 등으로 이동이 아주 편리 합니다.
또한, 현재 공사중인 만덕, 센텀 대심도가 개통 되면 해운대로의 이동 역시 보다 좋아지게 됩니다.
2) 사업규모, 실거주 환경
전체 1638세대의 대단지로 계획하고 있으며
양천초등학교가 불과 2분여 거리에 있는 초품아 단지이고
북구 최고 상권중 하나인 덕천역 상권이 도보 5분여 거리에 위치하여
뉴코아아울렛, 덕천시장, 부민병원, 성심병원을 비롯하여 많은 병원 및 상가들의 이용이 편리하고
상권 지역과는 한블록 정도 거리를 두고 있어 번잡함 없는 주기지로서도 좋습니다.
주변 변화로
구역 맞은편으로 포레나 덕천 1,2,3차 1800여 세대가 신축 입주하여
주변 거주 환경에 변화가 있으며 향후 함께하면 3000여세대가 넘는 아파트 주거 타운이 형성되어
실거주 환경은 더욱 좋아질 것으로 예상 됩니다.
3) 가장 큰 장점 1 : 소액
재개발 초기 구역들은
안정적 단계인 사업시행계획인가 등 까지 다소 오랜 시간이 소요되기에
보유기간 동안 자금이 묶이게 되어 보유에 부담이 작을수록 좋습니다.
덕천3은 매매가 자체가 1억 언더 매물들이 다수 있어서 부담이 작으며
소액이기에 향후 매매에도 좋고 상승시에도 그 여지가 충분히 있는 장점을 가지게 됩니다.
4) 가장 큰 장점 2 : 빠른 진행
추진위 사무실 오픈에서 사타 심의 신청까지 9개월,
사타통과 8개월여, 구역지정고시 1년 5개월여 만에 통과 되어
상대적으로 타구역들에 비해 대단히 빠르게 진행이 되고 있습니다.


3. 덕천3구역 재개발 : 예상 타입별 세대수 :
전체 1600여세대의 대단지로 계획하고 있으며
북구 주요 상권 및 교통 중심 덕천동 상권에 인접하고
숙등역 역세권으로 실거주 좋아 공동주택이 다소 많아 조합원 비율이 다소 높아 아쉽습니다.


4. 덕천3구역 재개발 : 사업 주요 특징 :
- 지하철 역세권, 초품아, 대단지, 평지
- 교통 편리 ( 남해고속도로, 만덕, 초읍터널 )
- 덕천역 상권, 주변 변화



덕천3구역 및
부산 전역 재개발에 대해 궁금하신 사항은 방문 또는 연락주시면 자세히 설명 드리겠습니다.




고맙습니다.
건강한 하루 하루 되십시오.
입주권 및 분양권을 비롯하여
부산 경남 건물 토지 상가 주택 등 부동산 물건 투자 및 물건 접수 받습니다.

[ 부산, 양산, 경남 / 상가 / 건물 / 토지 / 재개발 / 재건축 전문으로 신속하고 정직하게 거래 합니다. ]
[ 매수 / 매도 / 임대 물건 접수 받습니다. ]
'렛츠부동산 > 재개발' 카테고리의 다른 글
| (사옥추천) 급매 매수한 가격보다 싸게 부산역 인근 대로변 7층 올근생 상가 건물 빌딩 (0) | 2025.11.07 |
|---|---|
| 초량2구역 재개발 : 입지, 특징 그리고 최저 소액 매물 (0) | 2025.11.06 |
| 가야1구역 재개발 : 조합원 재분양신청 방법, 포인트 + 매물 (0) | 2025.11.03 |
| 범천4구역 재개발 : 확정감정가 최저 매물 & 조합원 분양 신청 소식 (0) | 2025.11.01 |
| 문현3구역 재개발 : 현 매물 수익성 체크, 소개 + 진행 상황 (1) | 2025.10.31 |
글
가야1구역 재개발 : 조합원 재분양신청 방법, 포인트 + 매물

안녕하세요
철거 상당히 진행
가야1구역 재개발 : 현 가능 매물 + 조합원 재분양신청 방법, 포인트 등 소개해 드리겠습니다.

조합원 재분양신청
가야1구역 재개발 은
20025년 4월부터 철거 진행하여 상당히 많이 진척이 되었고
설계 변경과 사시변경에 따른
조합원 재분양 신청을 11월 10일부터 한달여 동안 진행될 예정입니다.
이미 평형 신청을 한차례 해보셔서 잘 아시겠지만 아래, 참고 사항들도 한번 보시면 좋을 듯 하며
2026년에는 철거완료및 착공이 예정되어 있습니다.

1. 재개발 사업 전반 개요 및 입지 : 가야1구역 재개발 :
중심도심 역세권
가야1구역 재개발 은
1) 역세권 / 위치, 교통
부산 지하철 2호선 가야역과 동의대역 사이에 위치하여
도보 3 ~ 5분 역세권 단지가 됩니다.
위치, 교통적으로
부산 중심 도심에 인접해 있어 부산 전역으로 이동이 좋은 편이고
+ 가야대로를 통해 부산 중심 서면과 불과 5분 정도로 접근 가능하고
+ 뒤로 수정터널을 통해 부산역, 남포역, 광복동 등 원도심으로 이동도 좋고
+ 앞으로 백양산 터널을 이용하면 부산 시외로의 이동도 편리합니다.
2) 사업 규모 및 사업성
가야동 인근 최대 규모인
1863세대의 대단지로 계획하고 진행중에 있으며
전체 세대수 대비 조합원 비율은 불과 약 36%로 아주 낮아 우수한 사업성을 가지고 있습니다.
3) 실거주 환경
[ 학교 ]
가야초등학교를 곁에 품어 초품아 단지가 됩니다.
[ 상권, 인프라 ]
가야동은 많은 주택과 소형 아파트들이 많은 오래된 주거지로 거주지 상권이 잘 발달해 있으며
바로 뒤로는 동의대가 위치하여 다양한 동의대 대학상권 역시 형성되어 있어 편리합니다.
또한,
지하철 2정거장이면 부산 최고 서면 상권으로 접근하여
롯데백화점을 비롯하여 많은 병원, 상가들의 이용이 좋습니다.
4) 시공사 / 특화 설계
시공사는 대우건설과 현대산업개발 컨소시엄으로
" 더 다이너스티 가야 " 라는 가칭으로
SMDP 외관특화, 다양한 특화 설계와
골든타임제분양, 조합원 중도금 입주시 납부 등 좋은 조건으로 조합원 분들예게 혜택이 됩니다



2. 가능 매물 소개 : 가야1구역 재개발 :
그럼,
가야1구역 재개발 현재 가능 매물 정리 드리겠습니다.


그럼,
조합원 재분양 신청 방법등 정리드립니다.
3. 조합원 재분양 신청 일정, 방법, 요령, 포인트 : 가야1구역 재개발 :
1) 조합원 재분양 신청 일정 및 평형 배정 원칙

2) 평형신청 방법, 포인트
이미 2022년에 한번 평형 신청을 하셔서 요령이나 방법을 다 아시겠지만 다시 한번 체크 드립니다.

3) 타입별 세대수 및 조합원 배정
1) 조합원 배정 층

2) 타입별 세대수 및 조합원 배정




4. 시공사 현대산업개발 + 대우건설 특화 제안 간략 : 가야1구역 재개발 :
* 가칭 : 더 다이너스티 가야
* 시공사 : 현대산업개발 + 대우건설
가야1구역의 위상의 변화에 따라 시공사 측에서는 추가적인 업그레이드 제안을 하였습니다.


5. 주요 특징 간략 재정리 : 가야1구역 재개발 :
- 부산 중심도심, 지하철 역세권
- 교통편리 (수정터널, 백양산터널, 서면 바로 인접)
- 수요 충분한 ( 신축 브랜드 대단지 아파트 공급 없는 )




가야1구역 재개발의 추가적인 정보는 아래 페이지를 참고 부탁드립니다.
https://blog.naver.com/nackyeop/224056803427
역세권 가야1구역 재개발 : 매물 + 조합원 재 분양신청 일정, 방법, 체크사항
안녕하세요 로이의렛츠부동산 입니다. JAK 제이에이케이 부산 부동산 중개법인(주)은 부산 최초로 재개...
blog.naver.com
가야1구역 및
부산 전역 재개발에 대해 궁금하신 사항은 방문 또는 연락주시면 자세히 설명 드리겠습니다.


고맙습니다.
건강한 하루 하루 되십시오.
입주권 및 분양권을 비롯하여
부산 경남 건물 토지 상가 주택 등 부동산 물건 투자 및 물건 접수 받습니다.

[ 부산, 양산, 경남 / 상가 / 건물 / 토지 / 재개발 / 재건축 전문으로 신속하고 정직하게 거래 합니다. ]
[ 매수 / 매도 / 임대 물건 접수 받습니다. ]
'렛츠부동산 > 재개발' 카테고리의 다른 글
| 초량2구역 재개발 : 입지, 특징 그리고 최저 소액 매물 (0) | 2025.11.06 |
|---|---|
| 덕천3구역 재개발 : 소액 매물 & 구역 지정 고시 소식 (0) | 2025.11.04 |
| 범천4구역 재개발 : 확정감정가 최저 매물 & 조합원 분양 신청 소식 (0) | 2025.11.01 |
| 문현3구역 재개발 : 현 매물 수익성 체크, 소개 + 진행 상황 (1) | 2025.10.31 |
| 사직3구역 재개발 : 진행 소식, 일정, 입지, 특징 그리고 매물 (0) | 2025.10.28 |





