글
덕천3구역 재개발 : 소액 매물 & 구역 지정 고시 소식

안녕하세요
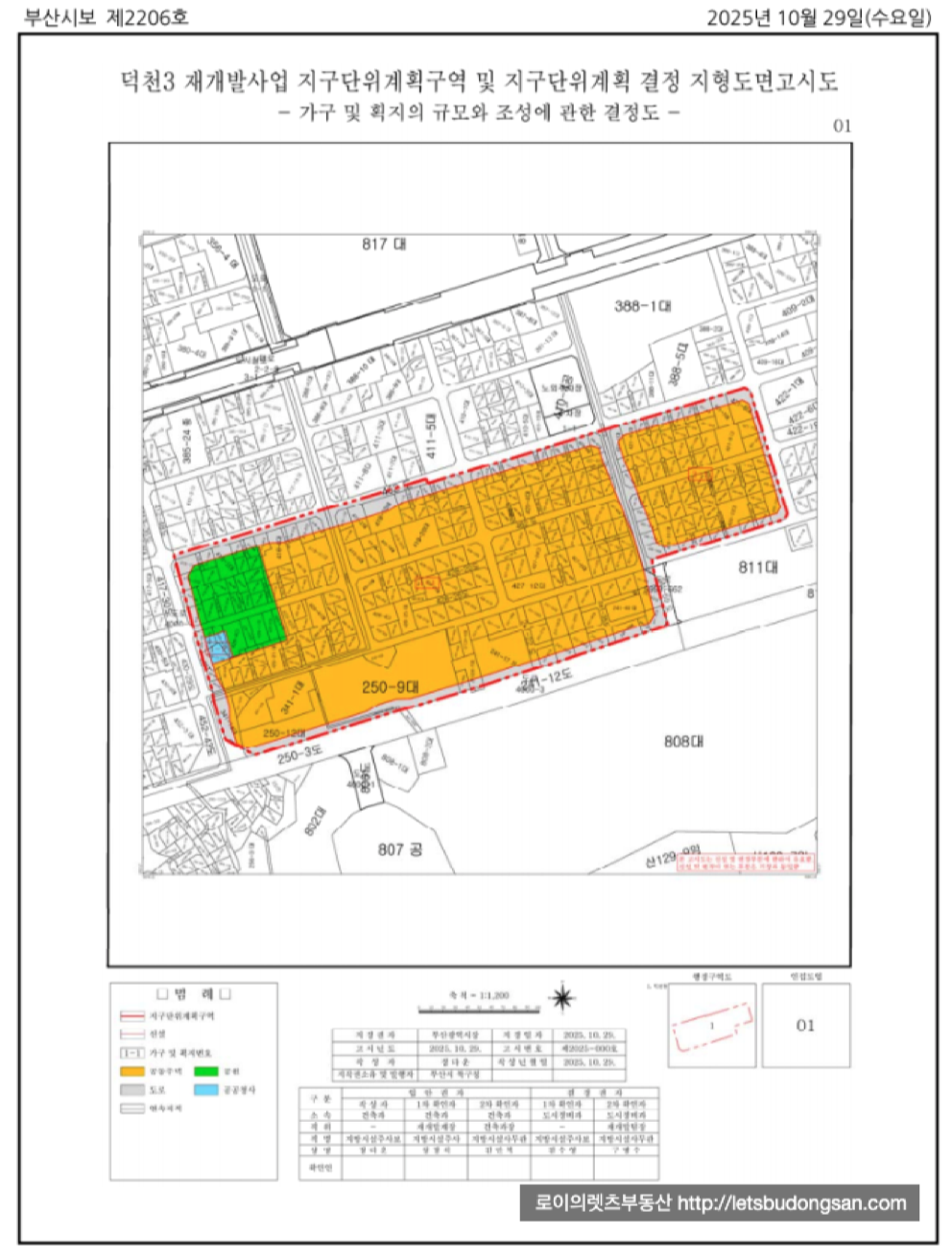
정비구역 지정고시
덕천3구역 재개발 : 소액 매물 & 구역 지정 고시 소식 소개해 드리겠습니다.
소액투자처
덕천3구역 재개발 은
기다리고 기다리던
2025년 10월 29일 정비계획 결정 및 정비구역 지정 고시가 되었습니다.
이제 조합설립을 위해 추진위 승인를 받고
주민설명회와 창립총회를 거쳐 조합설립인가로 진행될 예정입니다.



1. 덕천3구역 재개발 : 현 최/저/소/액 매물 :
그럼,
덕천3구역 재개발 : 최/저 소/액 매물 소개해 드리겠습니다.
* 부산 최저 매매, 인수가로 매수 및 보유에 부담이 작고 향후 상승폭도 기대할 수 있습니다.


2. 덕천3구역 재개발 : 재개발 사업 개요 및 입지 :
구역지정고시
덕천3구역 재개발은
1) 역세권 / 위치. 교통
부산 지하철 3호선 숙등역 곁에 둔 초역세권 이며
- 지하철 3호선 : 수영, 연산동, 종합운동장, 사직동, 숙등, 덕천, 구포. 대재 로 부산을 관통하는 노선
시내로 - 덕천초읍 터널 (만덕3터널)이 개통되어 교통체증을 피해 사직동, 연산동 등으로 접근이 개선되었고
시외로- 덕천IC가 바로 접해 있어 남해 고속도로 등으로 이동이 아주 편리 합니다.
또한, 현재 공사중인 만덕, 센텀 대심도가 개통 되면 해운대로의 이동 역시 보다 좋아지게 됩니다.
2) 사업규모, 실거주 환경
전체 1638세대의 대단지로 계획하고 있으며
양천초등학교가 불과 2분여 거리에 있는 초품아 단지이고
북구 최고 상권중 하나인 덕천역 상권이 도보 5분여 거리에 위치하여
뉴코아아울렛, 덕천시장, 부민병원, 성심병원을 비롯하여 많은 병원 및 상가들의 이용이 편리하고
상권 지역과는 한블록 정도 거리를 두고 있어 번잡함 없는 주기지로서도 좋습니다.
주변 변화로
구역 맞은편으로 포레나 덕천 1,2,3차 1800여 세대가 신축 입주하여
주변 거주 환경에 변화가 있으며 향후 함께하면 3000여세대가 넘는 아파트 주거 타운이 형성되어
실거주 환경은 더욱 좋아질 것으로 예상 됩니다.
3) 가장 큰 장점 1 : 소액
재개발 초기 구역들은
안정적 단계인 사업시행계획인가 등 까지 다소 오랜 시간이 소요되기에
보유기간 동안 자금이 묶이게 되어 보유에 부담이 작을수록 좋습니다.
덕천3은 매매가 자체가 1억 언더 매물들이 다수 있어서 부담이 작으며
소액이기에 향후 매매에도 좋고 상승시에도 그 여지가 충분히 있는 장점을 가지게 됩니다.
4) 가장 큰 장점 2 : 빠른 진행
추진위 사무실 오픈에서 사타 심의 신청까지 9개월,
사타통과 8개월여, 구역지정고시 1년 5개월여 만에 통과 되어
상대적으로 타구역들에 비해 대단히 빠르게 진행이 되고 있습니다.


3. 덕천3구역 재개발 : 예상 타입별 세대수 :
전체 1600여세대의 대단지로 계획하고 있으며
북구 주요 상권 및 교통 중심 덕천동 상권에 인접하고
숙등역 역세권으로 실거주 좋아 공동주택이 다소 많아 조합원 비율이 다소 높아 아쉽습니다.


4. 덕천3구역 재개발 : 사업 주요 특징 :
- 지하철 역세권, 초품아, 대단지, 평지
- 교통 편리 ( 남해고속도로, 만덕, 초읍터널 )
- 덕천역 상권, 주변 변화



덕천3구역 및
부산 전역 재개발에 대해 궁금하신 사항은 방문 또는 연락주시면 자세히 설명 드리겠습니다.




고맙습니다.
건강한 하루 하루 되십시오.
입주권 및 분양권을 비롯하여
부산 경남 건물 토지 상가 주택 등 부동산 물건 투자 및 물건 접수 받습니다.

[ 부산, 양산, 경남 / 상가 / 건물 / 토지 / 재개발 / 재건축 전문으로 신속하고 정직하게 거래 합니다. ]
[ 매수 / 매도 / 임대 물건 접수 받습니다. ]
'렛츠부동산 > 재개발' 카테고리의 다른 글
| (사옥추천) 급매 매수한 가격보다 싸게 부산역 인근 대로변 7층 올근생 상가 건물 빌딩 (0) | 2025.11.07 |
|---|---|
| 초량2구역 재개발 : 입지, 특징 그리고 최저 소액 매물 (0) | 2025.11.06 |
| 가야1구역 재개발 : 조합원 재분양신청 방법, 포인트 + 매물 (0) | 2025.11.03 |
| 범천4구역 재개발 : 확정감정가 최저 매물 & 조합원 분양 신청 소식 (0) | 2025.11.01 |
| 문현3구역 재개발 : 현 매물 수익성 체크, 소개 + 진행 상황 (1) | 2025.10.31 |

