글
사직4구역 재개발 소액 인수가 8000 물건 (신축)

안녕하세요.
사직4구역 재개발 예정지 진행과정 과 인수가 8000 소액 물건 등 소개 하여 드리겠습니다.
사직4구역 재개발은 2022년 3월 정비구역 지정을 위한 사전타당성 심의가 접수 되었고



입지 기대
사직4구역 재개발 예정지 는
입지적 장점 뿐 아니라 진행속도 또한 대단히 빨라
추진위 설립 후 5개월여 만에 재개발의 공식적인 첫 단계인 정비구역 지정을 위한 사전타당성 심의 신청이
접수가 되었고 관할구청과 협의 및 보완 완료하고 부산시로 이관 되어 심의중에 있습니다.
( 추가적으로, 현재 구역 하단 159번지 일원 부분에 잔여지 및 구역 정형화를 위해 추가 편입 예정입니다.
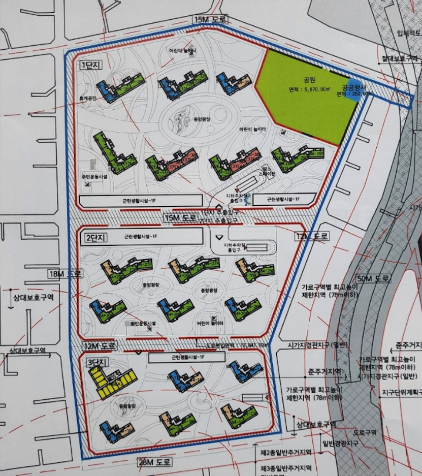
진행 규모 및 주변 환경으로
부산에서 드문 평지 아파트 단지는
산이 많아 평지 아파트가 드문 부산에서 실제 거주하여 보시면 이동성과 접근성등 큰 장점을
느낄수 있습니다.
부산 지하철1호선, 4호선 환승역인 동래역 5분여의 역세권 이며
전체 약 1600여 세대의 평지 아파트 대단지로 진행될 예정으로
도보 5분여 온천천이 위치하고 있어서 휴식, 산책, 운동하기에도 좋으며
도보 3분여의 미남초와 내성중학교가 바로 인접해 있는 초품아 / 중품아 이고
우수한 학군을 자랑하는 곳이 사직동에 위치하여 사직동 학원가를 이용가능합니다
입지는 위에 말씀드린 것처럼 아주 우수하여 개인적으로도 기대가 되는 곳이기도 합니다.



그럼, 먼저
사직4구역 재개발 예정지 인수가 8000 신축 원룸등 소액 매물 소개해 드리겠습니다.
* 사직4구역 물건도 소액인수가 매물들이 좀 소진이 되었습니다.
* 아직 부동산 시장이 어렵고 거래가 살아나지 않았지만 입지가 좋거나 가격 조정폭이 큰 곳의
소액 매물부터 조금씩 소진이 되고 있습니다.


입지 기대
사직4구역 재개발의 현재 예상 타입별 세대수 입니다.
전체 조합원 숫자가 약 900+@ 정도로 예상하게 되면
조합원분들은 감정가의 크기에 상관없이 모두 84타입이 가능해 보입니다.
그리고,
현재 구역 하단 159번지 일원 부분에 추가 편입 역시 예정중에 있어 세대수 추가 될수 있습니다.


입지 기대
사직4구역 재개발의 입지적 장점등 특징을 다시한번 간략히 정리 하였습니다.
- 동래역 역세권, 초품아, 중품아, 학군좋은, 평지, 온천천, 동래 상권 등
- 입지적으로 대단히 우수해 보입니다.





부산 예정지등의 거래에 있어서는
권리 산정일이 중요하므로 부산시의 정비사업 권리산정 기준일 참고 하시면 좋습니다.

사직4구역 재개발의 추가 적인 정보는 아래 페이지를 참고 부탁드립니다.
https://blog.naver.com/himang1974/223029319372
입지 기대
사직4구역 재재발 예정지에 대해 궁금하신 점은 연락주시면 자세히 설명 드리겠습니다.


고맙습니다. 건강한 하루 하루 되십시오.
부산 전역 재개발, 재건축, 분양권, 상가, 주택 등 물건 투자 접수 받습니다.
양산 상가, 정관 상가, 주택, 토지 물건 접수 투자 받습니다.

[ 상가 / 주택 / 재개발 / 재건축 전문으로 신속하고 정직하게 거래 합니다. ]
[ 매수 / 매도 / 임대 물건 접수 받습니다. ]
'렛츠부동산 > 재개발' 카테고리의 다른 글
| 서면 배대포 중심 3층 상가 주택 건물 매매 (0) | 2023.03.06 |
|---|---|
| 감만1구역 재개발 75타입 피3000매물 (0) | 2023.03.05 |
| 북항바다뷰 우암2구역 재개발 일반분양일정과 분양가 그리고 조합원 입주권 84타입 급매물 (0) | 2023.03.02 |
| 시민공원 촉진4구역 재개발 매물 (0) | 2023.03.01 |
| 대연3구역 재개발 매물 ( 2단지, 1단지 매물 ) (0) | 2023.02.28 |

