글
사직4구역 재개발 진행과 소액 매물

안녕하세요.
동래역 역세권 : 입지 기대 사직4구역 재개발 예정지 구역 설명과 소액 인수가 물건 소개 하여 드리겠습니다.
사직4구역 재개발은
2022년 3월 정비구역 지정을 위한 사전타당성 심의가 접수 되었고
이어 10월에 시청으로 서류가 이관이 되었습니다.
그리고, 부산시의 사타 심의 가이드 라인이 발표 되면서
현재 시와 협의하며 보완을 하고 있으며 보완이 마치고 나며 사타심의 일정이 잡힐 것으로 보입니다.
다만, 현재 좀 많은 구역들이 대기 하고 있어 조금 시간은 필요해 보입니다.

사직4구역 재개발 예정지의 입지의 특징을 간략 설명드리며
개인적으로 향후 가치가 아주 기대되는 예정지로
주변으로 지도를 한번 보시면 동래역의 5분여 역세권으로
* 앞의 내성교차로를 두고
- 북서쪽으로 동래 재건축 대장인 럭키아파트가 위치해 있고,
- 북동쪽으로는 대동병원, 메가마트등 동래상권이
- 남동쪽으로는 온천천과 기대되는 수안 재건축이 있으며
- 남서방향으로 사직4구역 예정지가 자리를 잡고 있습니다.
이렇듯, 좋은 입지를 가지고 있어
주거 환경으로도 그리고 시세적으로 크게 기대가 될수 밖에 없습니다.


그럼, 먼저
사직4구역 재개발 예정지 신축 원룸등 소액 물건 정보 업데이트 하여 소개해 드리겠습니다.
* 아직 부동산 시장이 어렵고 거래가 살아나지 않았지만 입지가 좋거나 가격 조정폭이 큰 곳의
소액 매물부터 조금씩 소진이 되고 있습니다.



사직4구역 재개발 예정지 는
[ 역세권, 1600여새대, 평지 대단지 ]
부산 지하철1호선, 4호선 환승역인 동래역 5분여의 역세권 이며
전체 약 1600여 세대의 평지 아파트 대단지로 진행될 예정으로
도보 5분여 온천천이 위치하고 있어서 휴식, 산책, 운동하기에도 좋으며
도보 3분여의 미남초와 내성중학교가 바로 인접해 있는 초품아 / 중품아 이고
우수한 학군을 자랑하는 곳이 사직동에 위치하여 사직동 학원가를 이용가능합니다
부산에서 드문 평지 아파트 단지는
산이 많아 평지 아파트가 드문 부산에서 실제 거주하여 보시면 이동성과 접근성등 큰 장점을
느낄수 있습니다.
[ 진행 속도 ]
진행속도 또한 대단히 빨라
추진위 설립 후 5개월여 만에 재개발의 공식적인 첫 단계인 정비구역 지정을 위한 사전타당성 심의 신청이
접수가 되었고 관할구청과 협의 및 보완 완료하고 부산시로 이관 되어 심의중에 있습니다.
추가적으로,
현재 구역 하단 159번지 일원 부분에 잔여지 및 구역 정형화를 위해 추가 편입 예정입니다.


동래역 역세권 : 입지 기대
사직4구역 재개발의 입지적 장점등 특징을 다시한번 간략히 정리 하였습니다.
- 입지적으로 대단히 우수해 보입니다.
- 동래역 역세권, 초품아, 중품아, 학군좋은, 평지, 온천천, 동래 상권 등





동래역 역세권 : 입지 기대
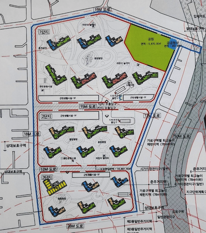
사직4구역 재개발의 현재 예상 타입별 세대수 입니다.
전체 조합원 숫자가 약 900+@ 정도로 예상하게 되면
조합원분들은 감정가의 크기에 상관없이 모두 84타입이 가능해 보입니다.
그리고,
현재 구역 하단 159번지 일원 부분에 추가 편입 역시 예정중에 있어 세대수 추가 될수 있습니다.
추진위의 자료를 기준으로 하였으며
향후 진행과정에서 변동이 있을 수 있으므로 참고 하시면 되십니다.


동래역 역세권 : 입지 기대
사직4구역 재개발 예정지의 노후도 및 추가 정보는 아래 페이지를 참고 부탁드립니다.
사직4구역 재개발 사타협의보완중 & 소액 매물 (1.4)
안녕하세요. 로이의렛츠부동산 입니다. 제이에이케이 부산 부동산중개법인은 양질의 정보를 정직하고 빠르...
blog.naver.com
'렛츠부동산 > 재개발' 카테고리의 다른 글
| 영도5구역 재개발 뚜껑 소액매물 (0) | 2023.02.26 |
|---|---|
| 범천4구역 재개발 무피 최저 매물 (0) | 2023.02.24 |
| 부민2구역 재개발 9000 소액 물건 정보 (1) | 2023.02.21 |
| 전포4,5통합 재개발 (전포4주거환경개선지구) 구역 소개 및 소액매물 (0) | 2023.02.19 |
| 안락동 대로변 카페 / 대형 음식점 어울리는 3층 신축 상가 건물 매매 (0) | 2023.02.18 |




