글
" 광안3구역 재개발 : 구역지정 공람 " + 임대있는 원룸 등 물건
안녕하세요.
구역지정 앞두고 있는
광안3구역 재개발 예정지 구역지정 공람공고소식과 물건정보를 소개 드리겠습니다.

광안3구역 재개발 최근 진행 소식은 주민설명회와 공람소식 입니다.
주민설명회와 공람을 마치고 나면
추진위에서는 경관심의를 준비하여 진행하고 나면 정비구역 지정 고시가 될 것으로 보입니다.



그럼
광안3구역 재개발 예정지 물건 정보를 소개해 드리겠습니다.
- 다세대 물건은 공동주택가격 1억 언더로 다주택 상관없이 취득세 1.1%가 됩니다 ( 구역지정전이므로 )
- 주택부속토지는 보유 양도시에 주택수에 카운트가 되지 않으며 (취득세와 종부세시에는 주택수에만 )



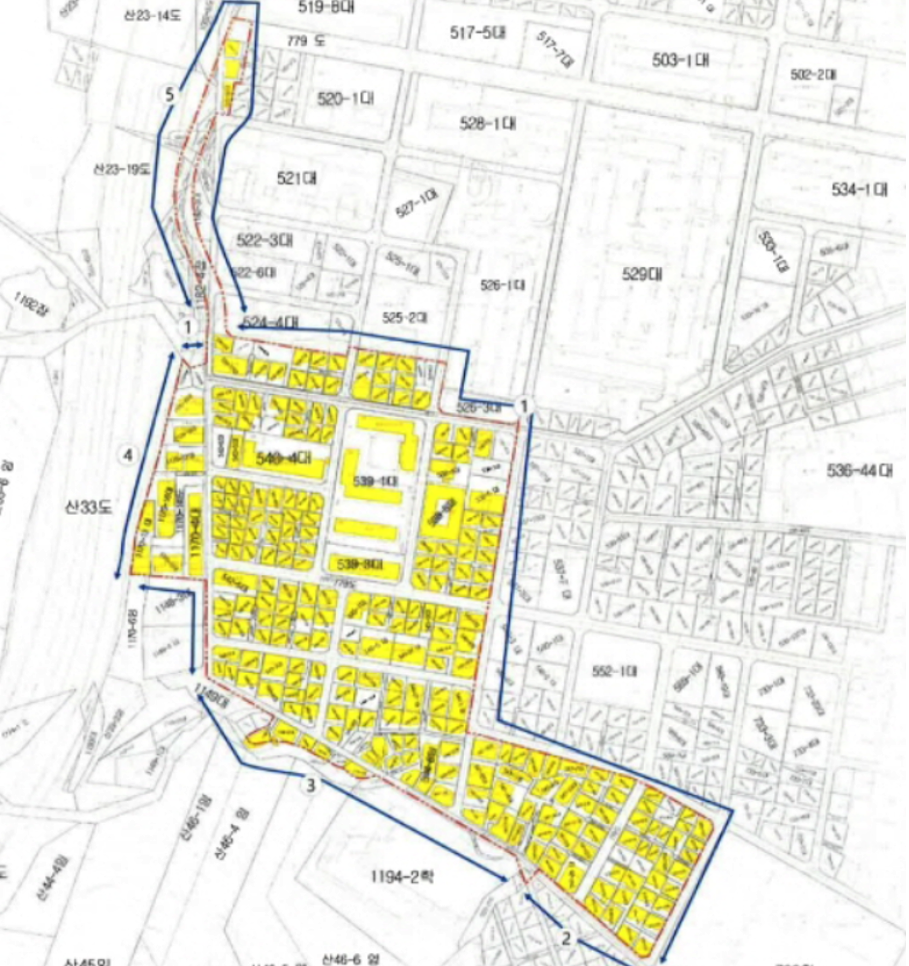
구역지정 앞두고 있는 광안3구역 재개발 예정지 는
광안역을 도보로 이용가능한 준역세권 지역 이며
호암초등학교, 수영중학교 등이 바로 접해 있는 초품아, 중품아로 학모님들의 선호도가 높을 것이며
바로 아래에는 호암근린공원이 위치해 있고
도보로 광안 해수욕장을 이용 가능한 장점을 가지고 있는
입지좋고 시세도 좋은 수영구에 위치하고 있다는 것이 가장 큰 장점입니다.
진행상황으로는
이미 사전타당성통과 > 정비구역지정 신청 > 공람공고 진행중으로
정비구역지정고시가 가시권으로 들어와 있어
사실상 광안동의 많은 예정지들과는 다르게 상대적으로 안정적으로 보입니다.
빠른 추진위의 대처와 조합원분들의 열의를 감안하면
2022년 하순경 정비구역 지정 고시가 이 예상되고 있습니다.
또한,
그동안 GS건설, 포스코 건설에 이어
삼성물산의 래미안 역시 광안3구역 재개발에 도전을 밝혀 예비조합원분들의 기대가 높아지고 있습니다.
래미안은 부산에서 가장 선호도가 높고 브랜드 프리미엄 역시 가장 높습니다.


구역지정 앞두고 있는
광안3구역 재개발 예정지 가 위치한
부산 수영구는
전국 최고의 해수욕장중에 하나인 부산 광안리 해수욕장 바닷가을 도보로 이용가능하게 인접해 있으면서도
중심도심 만큼의 실거주 편리함을 그대로 누릴수 있는 장점을 가진 지역으로
부산에서 가장 시세가 높은 곳 중 하나 입니다.
광안동은
수영을 가로지르는 대로인 기존 수영로의 아랫쪽(광안쌍용예가등)이 시세를 이끌고 있었습니다.
수영대로의 아랫쪽은 광안해변 접근성과 평지에 지하철 접근성에서 장점을 가지고 있지만
조금은 관광지적인 느낌을 주는데 부분이 있습니다.
반면에,
수영대로의 윗쪽 부분은 아파트 단지들보다 소형 단지, 빌라, 주택가들이 있어 주거환경은 상대적으로 윗쪽에 비해 좋지 않았습니다만
최근, 광안2구역 (광안SK), 광안자이, 에일린의 뜰 로 이어지는 약 2500여세대로 조성이 되는 것과 함께
광안3구역까지 진행이 되면 4개단지 모두 3600여세대의 새로운 신축 대단지 주거 타운이 형성되게 되어
광안동 주거단지의 변화가 발생하고 있습니다.
물론, 광안역 아래의 새로운 예정지들의 진행에 따라 변화가 있을수도 있겠습니다.
수영로 윗쪽 부분의 신축 아파트 단지 벨트 리스트 입니다.



구역지정 앞두고 있는
광안3구역 재개발 예정지의 현재까지의 진행상황등 및 예상별 타입별 세대수 는 아래 페이지를 참고 부탁드립니다.
" 광안3구역 재개발 : 구역지정 공람 및 주민설명회 " + 신축원룸 등 매물 소개
안녕하세요. 로이의렛츠부동산입니다. 오늘은 구역지정 앞두고 있는 광안3구역 재개발 예정지 구역지정 공...
blog.naver.com
광안3구역 (가칭) 재개발 예정지 에 대해 궁금하신점은 연락주시면 자세히 설명드리겠습니다.



고맙습니다. 건강한 하루 하루 되시기 바랍니다.
부산전역 재개발, 재건축, 분양권, 상가, 주택 등 물건 투자 접수 받습니다.
양산 상가, 주택, 토지 물건 접수 투자 받습니다.
'렛츠부동산 > 재개발' 카테고리의 다른 글
| 명장5구역 재개발 예정지 진행소식과 소매물 (0) | 2022.04.11 |
|---|---|
| 광안6구역 재개발 진행과 소액 매물 (0) | 2022.04.09 |
| 하단2구역 재개발 통의율 65% 소식과 매물 (0) | 2022.04.07 |
| 연산1구역 재개발 진행과 매물 (0) | 2022.04.06 |
| " 서금사5구역 재개발 : 경관심의통과 " & 가능 매물 (0) | 2022.04.05 |


