글
광안4구역 재개발 시공사 선정 이후 일정, 소식 & 최저 소액 매물

안녕하세요
더블 역세권
광안4구역 재개발 은 최저 소액 매물 & 최근 진행 상황, 일정, 소식 정리 드리겠습니다
입지 좋은
광안4구역 재개발 은
사타통과 > 구역지정에 이어
조합설립인가, 시공사선정까지 진행 되어
재개발 진행 체제 구축을 완료하여 이제 본격적인 사업을 진행게 됩니다.
그 시작이 사업시행계획인가 심의 신청을 위한 통합 심의를 준비하게 됩니다.


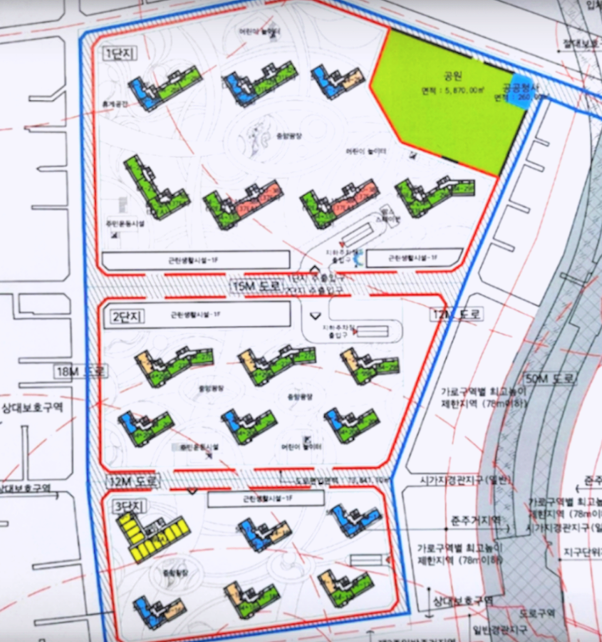
1. 광안4구역 재개발 : 재개발 전반 사업 개요 및 입지 :
1) 사업 규모 / 평지
전체 약 966세대의 중협급 단지로 계획하고 있으며
산이 많은 부산에서 드물게 구역 전체가 평지로 구성되어 있어
단지의 배치가 효율적이게 되어 토지의 활용도가 좋고
향후에는, 단내 내외부 이동 및 접근이 좋아 큰 장점이 되게 됩니다.
2) 도보거리 광안리 바닷가
구역과 접해 있는 감포로를 통해 동방오거리를 거쳐
광안리 바닷가로 도보 15분이면 접근해
아름다운 바다와 특별한 관광지 상권의 을 누릴수 있다는 큰 장점을 가지고 있습니다.
3) 더블 역세권 / 교통, 위치
부산 지하철 2호선, 3호선 환승역인 수영역의 도보 2~3분 더블 역세권으로
+ 지하철 2호선 : 해운대, 수영, 광안동, 대연동, 서면(1호선), 사상, 덕천, 화명, 양산 으로 이어지는
+ 지하철 3호선 : 수영, 연산(1호선), 사직, 만덕, 덕천, 대저로 이어지는 도시철도
가로 세로로 부산을 가로지르는 지하철 2개 호선 이용으로 편리합니다.
교통 및 위치적으로
해운대 바로 초입으로 수영로 통해 해운대 접근이 좋고
연수로를 통해 연산동, 부산시청으로의 이동도 좋으며
구역 접한 감포로를 통해서는 차량 5분내로 광안리 해수욕장으로 접근이 가능합니다.
그리고, 인접한 광안대교와 원동IC를 통해 시내외로의 이동 역시 좋습니다.
4) 실거주 환경
학교로는
구역 맞은편에 바로 민안초등학교가 도보 3분여 거리에 있으며
인근으로 광안초등학교와 한바다중학교도 가까이 있습니다.
싱권으로는
수영역 주위로 많은 병원과 상가가 밀집되어 있고 재래시장 팔도시장도 있어 편리하고
대형마트 코스트트가 차량 5분여 거리에 있어 이용이 좋고
또한,
차량 5분여 해운대 센텀 생활권으로
신세계 백화점, 롯데백화점, 벡스코, 부산시립미술과, 영화의전당, 수영나루 등
다양한 센텀지구의 문화시설과 상권 이용 역시 편리합니다.
5) 주변 재개발 : 민락2구역
감포로를 두고 마주보고 있는 민락2구역과는 비슷한 사업규모와 진행을 보이고 있으며
함께 하면 향후 1900여세대의 신축 아파트 타운이 형성이 될 예정입니다.



2. 광안4구역 재개발 : 최저 매물 소개 :
그럼, 통합 심의 준비
광안4구역 재개발 : 소액 추/천 매물 소개해 드리겠습니다.



3. 광안4구역 재개발 : 시공사 현대산업개발 주요 제안 :
시공사로 현대산업개발이 선정되었으며
아이파크 클라루스 라는 가칭으로 진행되고 있습니다.
1) 주요 제안 내용

2) 조합원 특별 지급 품목



4. 광안4구역 재개발 : 타입별 세대수 :
전체 966세대의 중형급 단지로 계획하고 있으며


5. 광안4구역 재개발 : 사업 주요 특징 재 정리 :
- 실거주 좋고 시세 좋은 수영구. 센텀생활권
- 수영역 더블 역세권 : 부산 지하철 2호선, 3호선 환승센터.




광안4구역 재개발 : 사업 진행 사항 & 이후 예상 일정 체크 : 등 추가 정보는 아래 페이지를 참고 부탁드립니다.
광안4구역 재개발 : 소액 추/천 소액 매물 & 사시 위한 통합 심의 준비 일정
안녕하세요 로이의렛츠부동산 입니다. JAK 제이에이케이 부산 부동산 중개법인(주)은 부산 최초로 재개...
blog.naver.com
광안4구역 및
부산 전역 재개발에 대해 궁금하신 사항은 방문 또는 연락주시면 자세히 설명 드리겠습니다.



고맙습니다.
건강한 하루 하루 되십시오.
입주권 및 분양권을 비롯하여
부산 경남 건물 토지 상가 주택 등 부동산 물건 투자 및 물건 접수 받습니다.

[ 부산, 양산, 경남 / 상가 / 건물 / 토지 / 재개발 / 재건축 전문으로 신속하고 정직하게 거래 합니다. ]
[ 매수 / 매도 / 임대 물건 접수 받습니다. ]
'렛츠부동산 > 재개발' 카테고리의 다른 글
| 입지좋은 사직3구역 재개발 : 현재 가능 추/ 천 매물 & 시공사 선정 (3) | 2025.06.26 |
|---|---|
| 구역 지정 고시 - 연산11구역 재개발 : 현 소액 매물 (1) | 2025.06.25 |
| 사직4구역 재개발 : 조합설립인가 소식과 이후 일정 그리고 소액 매물 (5) | 2025.06.23 |
| 가야1구역 재개발 - 입지, 특징, 진행 상황 & 시세 최저 매물 (1) | 2025.06.21 |
| 수익성 확보된 문현3구역 재개발 : 현 진행 상황 체크 & 최저 매물 (2) | 2025.06.20 |
글
사직4구역 재개발 : 조합설립인가 소식과 이후 일정 그리고 소액 매물

안녕하세요
동래역 역세권
사직4구역 재개발 : 최근 소식, 진행 상황, & 소액 매물 정보 소개해 드리겠습니다.


1. 사직4구역 재개발 : 사업 간략, 최근 진행 상황 :
출처 입력
시공사 선정 앞둔
사직4구역 재개발은
빠르게 진행중인
동래구 + 사직동, 동래역 역세권, 대단지
실거주 좋고, 학군도 좋아 시세도 우수한 동래구 사직동의 재개발 구역으로 관심이 높은 곳입니다.
* 진행 사항 간략, 이후 일정 체크 :
- 2024년 10월 23일 정비구역 지정 고시
- 2025년 6월 13일 : 조합설립인가 완료
- 2025년 하반기 : 시공사 선정 예정
* 주변 상황 입지턱 특징 간략


2. 사직4구역 재개발 : 현재 가능한 매물 소개 :
그럼, 입지 좋은
사직4구역 재개발 : 최저 소액 매물들 정리 소개해 드립니다.
* 실거주 좋은 동래구, 역세권 미래 기대되는 입지를 가지고 있습니다.


3. 사직4구역 재개발 : 전반 사업 개요 및 입지 :
1) 동래역 역세권/ 평지
동래구의 중심 부산 지하철 1호선 동래역 역세권 이라는 것만으로도
가장 큰 가치를 가지게 되며
산이 많은 부산에서 전체 구역이 평지로 되어 있어
단지의 배치가 효율적으로 가능해 토지의 이용도가 높고
향후에는, 단지 내외부 접근성 및 이동성에 있어서도 좋은 장점을 가지게 됩니다.
2) 초품아 / 사직동 학원가 + 우수 학군
미남초, 내성중 인접해 초품아, 중품아 단지이고
여고중, 사직중, 사직고, 동인고, 사직여고등 여러 우수 학교들이 사직동에 위치해 있어
전통적으로 우수 학군을 자랑하고 있습니다.
또한,
종합운동장역에서 사직역으로 이어지는
사직동 학원가는 질 좋은 학원들이 몰려 있어 서울의 대치동처럼 찾아오는 학원가로 유명하여
좋은 학군과 좋은 교육 환경을 가지고 있습니다..
3) 사업규모 / 사업성
현재 1818세대의 대단지로 계획하고 있고
전체 세대수 대비 조합원 비율은 약 58% 정도로
최근 초기 구역들의 높은 비율과 비교해 상대적으로 양호한 사업성을 가지고 있습니다.
4) 좋은 실거주 환경 + 온천천
도보 3분이면 동래구민이 사랑하는 아름다운 온천천을 누릴수 있어
가벼운 운동과 휴식과 힐링의 좋은 자연 환경을 가지고 있습니다.
주변 상권으로는
동래 최대 상권인 동래역 상권으로 많은 병원과 다양한 상가들이 밀집해 있으며
대형마트 메가마트가 도보거리에 있고 차량 3분이면 롯데백화점 동래점의 이용도 가능합니다.
또한, 동래구청 역시 도보 거리에 있어 전반 주거 인프라가 우수 합니다.



4. 사직4구역 재개발 : 계획된 각 타입별 세대수 :


5. 사직4구역 재개발 : 사업 주요 특징 :
- 시세 좋고, 실거주 좋고, 학군 좋은 사직동
- 동래역 역세권, 평지, 온천천, 초품아, 중품아
- 온천천, 우수한 동래역 주변 상권




사직4구역 재개발 : 현재까지 진행 사항 & 예상 일정 체크 : 등 추가 정보는 아래 페이지를 참고 부탁드립니다.
https://blog.naver.com/nackyeop/223903741064
사직4구역 재개발 : 소액 매물 & 조합설립인가 > 시공사 선정 절차 진행 예정
안녕하세요 로이의렛츠부동산 입니다. JAK 제이에이케이 부산 부동산 중개법인(주)은 부산 최초로 재개...
blog.naver.com
사직4구역 및
부산 전역 재개발에 대해 궁금하신 사항은 방문 또는 연락주시면 자세히 설명 드리겠습니다.

고맙습니다.
건강한 하루 하루 되십시오.
입주권 및 분양권을 비롯하여
부산 경남 건물 토지 상가 주택 등 부동산 물건 투자 및 물건 접수 받습니다.

[ 부산, 양산, 경남 / 상가 / 건물 / 토지 / 재개발 / 재건축 전문으로 신속하고 정직하게 거래 합니다. ]
[ 매수 / 매도 / 임대 물건 접수 받습니다. ]
'렛츠부동산 > 재개발' 카테고리의 다른 글
| 구역 지정 고시 - 연산11구역 재개발 : 현 소액 매물 (1) | 2025.06.25 |
|---|---|
| 광안4구역 재개발 시공사 선정 이후 일정, 소식 & 최저 소액 매물 (3) | 2025.06.24 |
| 가야1구역 재개발 - 입지, 특징, 진행 상황 & 시세 최저 매물 (1) | 2025.06.21 |
| 수익성 확보된 문현3구역 재개발 : 현 진행 상황 체크 & 최저 매물 (2) | 2025.06.20 |
| 대연8구역 재개발 : 최근 진행 소식, 사시 예상 일정 체크 & 현 최저 급매 매물 (3) | 2025.06.19 |
글
가야1구역 재개발 - 입지, 특징, 진행 상황 & 시세 최저 매물

안녕하세요
중심도심 역세권
가야1구역 재개발 입지, 특징, 진행 상황 & 현재 시세 최저 매물 소개해 드리겠습니다.
철거중인
가야1구역 재개발 은
2024년 4월부터 철거에 착수를 하였고
2026년 2월까지 철거를 마무리할 계획이며
설계 변경 등에 따른 조합원 재분양 신청은 9월경으로 예정을 하고 있습니다.
이후, 해당 부분을 반영한 관리처분계획변경인가를 받고 2026년 중순경쯤 착공을 예정하고 있습니다.


1. 재개발 전반 사업 개요 및 입지 : 가야1구역 재개발 :
1) 시공사, 특화설계
시공사는 대우건설 + 현대산업개발 컨소시엄이며
가칭 " 더 다이니스티 가야 " 라는 이름으로
스카이브릿지, SMDP 외관특화 등 특화설계와 함께
조합원 중도금 입주시 납부와 골든타임제 분양 등 조합원 분들에게 좋은 조건을 제시하였습니다.
2) 사업규모 / 사업성
가야동 신축, 최대 규모 1863세대의 대단지로 진행중에 있으며
전체 세대수 대비 조합원 비율이 불과 약 36%로 대단히 낮아 우수한 사업성을 가지고 있고
이에,
조합원 분양가 84기준 평당 약 1428로 최근 발표된 다른 구역들의 조분가에 비해 대단히 낮고
최근 2000이 훌쩍 넘어, 3000 넘어서도 나오는 일반 분양가에 비해 상당히 낮아
이미 그 가격적 수익성이 보장되어 있습니다.
3) 역세권 / 위치, 교통
부산 지하철 2호선 가야역과 동의대역 사이에 위치하여
도보로 3~5분여 역세권 단지가 될 예정입니다.
위치적으로
부산 중심도심에 위치해 부산 전역 및 시내외로의 이동이 좋습니다.
- 가야대로 통해 부산 중심 서면에 불과 5분내 이동이 가능하고
- 백양산 터널을 이용하여 시외로의 이동도 편리하며
- 수정터널을 통해 부산역, 남포동, 광복동 등의 원도심으로 이동 역시 좋습니다.
4) 실거주 환경
학교로는
가야초등학교가 구역과 접해 있는 초품아 단지이며
상권으로는
가야동은 많은 주택 단지가 있어왔던 오래된 주거지로 거주지 상권이 잘 발달해 있고
바로 뒷편으로는 동의대가 있어 다양한 대학상권의 이용도 좋습니다.
그리고,
부산 최고 상권 서면이 차량5분, 지하철 2정거장 거래내 위치해
서면의 많은 병원, 상가 및 롯데백화점등의 이용이 좋습니다.



2. 현재 가능한 매물 소개 : 가야1구역 재개발 :
그럼, 진행 대비 시세 낮아 매력적인
가야1구역 재개발 : 시세 최저 매물 소개해 드리겠습니다.




3. 변경된 각 타입별 세대수 : 가야1구역 재개발 :
중대형 평형을 눌리는 설계변경을 통해
각 타입별 세대수 변경이 있었고 이에 따라 사업시행계획변경인가를 진행완료하였고




4. 시공사 대우+현대산업개발 주요 제안 : 가야1구역 재개발 :
시공사는 현대사업개발과 대우건설이며
가칭 " 더 다이너스티 가야 " 로 명명하여 진행이 되고 있습니다.
시공사측에서는 기존 제안에 더하여 추가 업그레이드 제안을 하였습니다.



5. 재개발 사업 주요 특징 : 가야1구역 재개발 :
- 수요 충분한 ( 신축 브랜드 대단지 아파트 공급 없는 )
- 부산 중심도심, 지하철 역세권
- 교통편리 (수정터널, 백양산터널, 서면 바로 인접)



가야1구역 재개발 :재개발 사업 진행 사항 정리 + 이후 일정 : 등 추가 적인 정보는 아래 페이지를 참고 부탁드립니다.
(철거중) 가야1구역 재개발 : 최저 급매 매물과 수익성 계산, 체크 비교
안녕하세요 로이의렛츠부동산 입니다. JAK 제이에이케이 부산 부동산 중개법인(주)은 부산 최초로 재개...
blog.naver.com
가야1구역 및
부산 전역 재개발에 대해 궁금하신 사항은 방문 또는 연락주시면 자세히 설명 드리겠습니다.



고맙습니다.
건강한 하루 하루 되십시오.
입주권 및 분양권을 비롯하여
부산 경남 건물 토지 상가 주택 등 부동산 물건 투자 및 물건 접수 받습니다.
[ 부산, 양산, 경남 / 상가 / 건물 / 토지 / 재개발 / 재건축 전문으로 신속하고 정직하게 거래 합니다. ]
[ 매수 / 매도 / 임대 물건 접수 받습니다. ]
'렛츠부동산 > 재개발' 카테고리의 다른 글
| 광안4구역 재개발 시공사 선정 이후 일정, 소식 & 최저 소액 매물 (3) | 2025.06.24 |
|---|---|
| 사직4구역 재개발 : 조합설립인가 소식과 이후 일정 그리고 소액 매물 (5) | 2025.06.23 |
| 수익성 확보된 문현3구역 재개발 : 현 진행 상황 체크 & 최저 매물 (2) | 2025.06.20 |
| 대연8구역 재개발 : 최근 진행 소식, 사시 예상 일정 체크 & 현 최저 급매 매물 (3) | 2025.06.19 |
| 양정3구역 재개발 : 입주권 매물 가격 체크 비교 ( 양정 롯데캐슬 프론티엘) (3) | 2025.06.18 |
글
수익성 확보된 문현3구역 재개발 : 현 진행 상황 체크 & 최저 매물

안녕하세요
수익성 확보된
문현3구역 재개발 : 현 진행 상황 체크 & 최저 매물 소개해 드리겠습니다.


1. 문현3구역 재개발 : 사업 간략, 최근 진행 상황 :
수익성 좋은
문현3구역 재개발 은
조합원 비율 42%, 조합원 분양가 평당 약 1100으로
놀라운 사업성과 가격적 장점을 바탕으로
진행 대비 시세 낮아 - 주변 시세, 일반 분양가보다 낮은 가격으로 수익성이 확보되어 있고
이주 완료 / 철거 완료 후 이제 착공이 다가와 불확실성까지 거의 상쇄된 가성비 우수한 재개발 구역입니다.
* 간략 최근 진행 및 이후 예상 일정 :
- 2025년 3월 28일 사시 변경 위한 통합심의 통과
- 2025년 4월 철거 완료
- 2025년 6월 14일 사업시행계획 변경인가를 위한 조합원 총회 완료 및 바로 신청 예정
- 2025년 9 ~11월경 : 사시변경인가 고시 및 조합원 평형 변경 예정

2. 문현3구역 재개발 : 현재 가능한 매물 소개 :
그럼,
이미 수익성 확보된
문현3구역 재개발 : 매물 소개 및 총 아파트 예상 가격도 체크해 드리겠습니다.
* 조합원 물건은 착공 앞둔 진행 대비하여 시세가 낮으며 일반 분양가보다도, 주변 시세보다도 낮아
이미 수익성이 확보되어 가격적 메리트가 좋습니다.



3. 문현3구역 재개발 : 전반 사업 개요 및 입지 :
1) 사업규모 / 사업성
주택 최대 규모인 2468세대의 대단지로 진행중에 있으며
현재 철거완료 후 착공을 위해 준비중에 있습니다.
전체세대수 대비 조합원 비율은 약 42%로 좋은 사업성을 가지고 있습니다.
2) 놀라운 조합원 분양가
좋은 사업성을 바탕으로
현재 조합측에서 책정된 조합원 분양가는 평당 약 1100정도로 너무나 매력적이서
프리미엄를 더해도, 총아파트 가격이 약 6억 정도, 평당 1760만만원으로 놀라운 가격입니다.
최근 일반 분양 가격이 2000만원을 훌쩍 넘어 3000만원도 나오는 것을 감안하면
이미 일반 분양가보다 대단히 낮아 수익성이 크게 확보되어 있는 장점을 가지고 있습니다.
3) 교통 / 위치
부산 남구와 부산진구 접점에 위치하여
서면역이 불과 5분으로 부산 중심도심이라고 할수 있어 전반 부산 전역으로 이동성이 좋은데
부산의 관문 부산역은 15분 정도 접근이 가능하고
황령산 터널을 이용하면 대연동, 수영구로도 이동도 좋습니다.
대중교통 지하철은
문현역과는 구역과 도보 3~5 분여 역세권이고
부산국제금용센터역과는 구역 중앙에서 직선거리 300미터 이지만 접근 도로가 좋지 않아
다소 시간이 소요되지만, 향후 직선도로가 개통될 예정으로
구역 전체에서 지하철 접근성은 더욱 개선될 것 입니다.
4) 더욱 활성화될 부산국제금융센터
부산시에서는 부산을 국제금융중심지로 발돋음하기 위해 노력중이며
향후 부산 국제금융센터가 활성화가 되면
수많은 상주 직원들의 직주근접의 배후 주거리로 주거 수요 증가할 것으로 기대됩니다.
5) 실거주 환경
학교로는
문현초등학교와 문현여자고등학교를 곁에 두고 있는 초품아 단지가 되고
주위 도보 거리에 여러 학교들이 있습니다.
상권으로는
문현동은 오래된 주거지로 거주지 상권이 잘 발달해 있어서 좋고
반경 1.5km이내~
백화점, 많은 병원, 다양한 상가들이 밀집해 있는 부산 최고 서면 상권과
커넥트현대 (구 현대백화점), 부산진시장, 자유시장, 골드테마거리등의 범일역 상권도 있어
주변 실거주 인프라가 잘 형성되어 있습니다.



4. 문현3구역 재개발 : 계획된 각 타입별 세대수 :
조합측에서는 조합원 분들의 바램에 따라
84타입 이상 평형을 눌리는 설계 변경, 건축심의와 총회를 거쳐 사업시행계획인가 변경을 신청하고
변경인가가 나오게 되면
조합원 분들의 재분양신청을 진행할 예정으로
따라서, 현재 타입은 크게 중요치 않고
조합원 분들은 모두 84타이상 배정이 가능해 보입니다.



5. 문현3구역 재개발 : 시공사 힐스테이트 사업단 업그레이드 제안 :
문현3의 입지와 위상이 상승함에 따라 발맞추어
시공사인 힐스테이사업단은 조합원 분들을 위해 추가 업그레이드 제안을 하였습니다.
1) 사업 제안 및 특화 설계


2) 조합원 특별 제공 품목


6. 문현3구역 재개발 : 사업 주요 특징 :
높은 사업성, 놀라운 조합원 분양가 이를 통해 이미 수익성 크게 확보된
초품아, 역세권, 중심도심 인접, 1군 시공사




문현3구역 재개발 : 현재까지 진행 사항 & 예상 일정 체크 : 등 추가 정보는 아래 페이지를 참고 부탁드립니다.
(철거완료된) 문현3구역 재개발 : P2.1 최저 매물 + 진행 상황, 예상 일정
안녕하세요 로이의렛츠부동산 입니다. JAK 제이에이케이 부산 부동산 중개법인(주)은 부산 최초로 재개...
blog.naver.com
문현3구역 및
부산 전역 재개발에 대해 궁금하신 사항은 방문 또는 연락주시면 자세히 설명 드리겠습니다.

고맙습니다.
건강한 하루 하루 되십시오.
입주권 및 분양권을 비롯하여
부산 경남 건물 토지 상가 주택 등 부동산 물건 투자 및 물건 접수 받습니다.

[ 부산, 양산, 경남 / 상가 / 건물 / 토지 / 재개발 / 재건축 전문으로 신속하고 정직하게 거래 합니다. ]
[ 매수 / 매도 / 임대 물건 접수 받습니다. ]
'렛츠부동산 > 재개발' 카테고리의 다른 글
| 사직4구역 재개발 : 조합설립인가 소식과 이후 일정 그리고 소액 매물 (5) | 2025.06.23 |
|---|---|
| 가야1구역 재개발 - 입지, 특징, 진행 상황 & 시세 최저 매물 (1) | 2025.06.21 |
| 대연8구역 재개발 : 최근 진행 소식, 사시 예상 일정 체크 & 현 최저 급매 매물 (3) | 2025.06.19 |
| 양정3구역 재개발 : 입주권 매물 가격 체크 비교 ( 양정 롯데캐슬 프론티엘) (3) | 2025.06.18 |
| 광안9구역 재개발 : 소액 매물 체크 & 입지, 특징 진행 상황 (1) | 2025.06.17 |
글
대연8구역 재개발 : 최근 진행 소식, 사시 예상 일정 체크 & 현 최저 급매 매물

안녕하세요
사시 고시 다가오는
대연8구역 재개발 최근 진행 소식, 예상 일정 체크 & 현 최저 급매 매물 소개해 드리겠습니다
실거주 좋은 대연동
대연8구역 재개발 은
2025년 4월 어럽게 진행해오던 교육영향형가 심의를 통과 함께 따라
사업시행계획인가에 청신호가 켜졌으며 하반기에 고시가 기대되고 있습니다.


1. 대연8구역 재개발 : 전반 사업 개요 및 입지 :
1) 사업규모 / 사업성
전체 3348세대의 대단지로 계획하고 있으며 ( 건축심의 기준 )
전체 세대수 대비 조합원 비율이 약 39%로 상당히 낮아 우수한 사업성을 가지고 있어
향후 비례율도 기대가 되고 있습니다.
2) 위치 / 교통
부산 지하철 2호선 대연역 도보 10여분으로 준역세권 단지가 되며
유엔교차로 바로 옆으로 광안대교의 시작점으로 해운대로의 접근성 역시 좋고
부산의 관문 부산역은 유엔로와 충장대로의 부둣가를 통해,
부산 중심 서면은 황령산 터널을 통해 모두 10여분 정도면 접근 가능하며
부산항대고, 번영로, 동서고가로 역시 인접해 부산 시내외로의 이동이 좋습니다.
3) 실거주 환경
학교로는
석포초가 도보3분여 거리에 있고
주변으로 대천중, 석포여중, 대연중, 대연고등 여러 학교들이 위치해 있습니다.
문화 / 자연 인프라로
바로 앞으로 부산 박물관이 있고, 옆으로는 부산 문화회관이 있으며
넓은 자연과 녹지가 있는 UN 기념공원도 인접해 좋은 환경을 가지고 있습니다.
상권으로는
인접한 대연역 주위로 많은 병원, 상가들이 밀집해 있고
그 뒤편으로 못골시장, 대연시장도 있어 이용이 좋고 경성대, 부경대 상권 역시 인접해 편리하며
대형마트는 홈플러스 감만점이 도보 거리에 있어 좋습니다.



2. 대연8구역 재개발 : 현재 가능한 매물 소개 :
그럼,
대연8구역 재개발 : 추 천 드리는 급 매물 소개해 드리겠습니다.
* 엄선된 매물만 소개해 드립니다.


3. 대연8구역 재개발 : 계획된 각 타입별 세대수 :
시공사 선정 당시 시공사 제안 세대수와
금번 건축심의 기준 세대수 함께 소개해 드립니다.
건축심의 당시 시공사 선정 관련하여 소송중인 관계로
조합측에서는 빠른 진행을 위해 자체안으로 심의 진행하였고
향후 시공사와 협의하여 특화 설계안등 반영하여 타입별 세대수는 일부 변경이 될 것으로 보입니다.


4. 대연8구역 재개발 : 전반 사업 개요 및 입지 :
포스코 더샵 원트라체 : 더샵 고급화 및 특화 설계,
이주비 100% 지원, 조합원 분담금 입주후 1년후 납부, 다양하고 고급 조합원 제공 품목


5. 대연8구역 재개발 : 사업 주요 특징 :
- 실거주 좋은 대연동 : 학군 + 자연녹지 + 문화시설
- 대단지, 좋은 사업성, 교통 이동성



대연8구역 재개발 : 현재까지 진행 사항 & 예상 일정 체크 : 등 추가 정보는 아래 페이지를 참고 부탁드립니다.
(남구 첫 더샵) 대연8구역 재개발 : 급 매물 소개 & 사시 일정 체크
안녕하세요 로이의렛츠부동산 입니다. JAK 제이에이케이 부산 부동산 중개법인(주)은 부산 최초로 재개...
blog.naver.com
대연8구역 및
부산 전역 재개발에 대해 궁금하신 사항은 방문 또는 연락주시면 자세히 설명 드리겠습니다.

고맙습니다.
건강한 하루 하루 되십시오.
입주권 및 분양권을 비롯하여
부산 경남 건물 토지 상가 주택 등 부동산 물건 투자 및 물건 접수 받습니다.

[ 부산, 양산, 경남 / 상가 / 건물 / 토지 / 재개발 / 재건축 전문으로 신속하고 정직하게 거래 합니다. ]
[ 매수 / 매도 / 임대 물건 접수 받습니다. ]
'렛츠부동산 > 재개발' 카테고리의 다른 글
| 가야1구역 재개발 - 입지, 특징, 진행 상황 & 시세 최저 매물 (1) | 2025.06.21 |
|---|---|
| 수익성 확보된 문현3구역 재개발 : 현 진행 상황 체크 & 최저 매물 (2) | 2025.06.20 |
| 양정3구역 재개발 : 입주권 매물 가격 체크 비교 ( 양정 롯데캐슬 프론티엘) (3) | 2025.06.18 |
| 광안9구역 재개발 : 소액 매물 체크 & 입지, 특징 진행 상황 (1) | 2025.06.17 |
| 복산1구역 재개발 : 최근 진행 소식, 일정 & 급매 토지 등 매물 소개 (2) | 2025.06.16 |


