글
사직4구역 재개발 : 시공사 선정 이후 절차 그리고 현 /추/천/ 매물

안녕하세요
시공사 선정 완료
사직4구역 재개발 : 시공사 선정 이후 절차 그리고 현 /추/천/ 매물 소개 드리겠습니다.


1. 재개발 사업 요점 : 사직4구역 재개발 :
푸르지오 사직
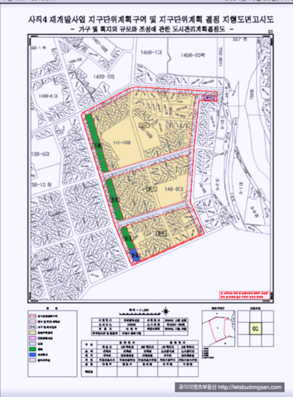
사직4구역 재개발 은
부산의 전통적 주거 우수 지역인 동래구
그 동래에서 최고의 학군을 자랑하는 사직동의 입지에
부산 지하철 1호선 동래역 역세권 + 상권에
동래구민의 힐링 포인트 온천천을 곁에 두고 있어 너무 좋은 환경을 두고 있어
실거주 좋고, 학군도 좋아서 시세 역시 당연히 좋은 우수 입지로 관심 받고 있는 재개발 구역입니다.

* 진행 사항 간략 >
[ 사타 > 구역지정고시 > 조합설립인가 > 시공사 선정 완료 >> 통합심의 > 사업시행계획인가 > > ]
- 2024년 10월 23일 정비계획 결정 및 정비구역 지정 고시
- 2025년 6월 13일 : 조합설립인가 완료
- 2026년 1월 17일 : 시공사 선정 완료 : 대우건설 (푸르지오 시그니엘 )
-> 이제 시공사, 협력사와 함께 건축, 교육, 교통 등 통합 심의를 준비하게 됩니다.


2. /추/천/ 매물 : 사직4구역 재개발 :
그럼, 푸르지오
사직4구역 재개발 : /추/천/ 매물 소개해 드리겠습니다.
* 좋은 입지에 상대적 소액 인수 매물들 입니다.


3. 재개발 사업 입지 및 개요 : 사직4구역 재개발 :
푸르지오 시그니엘
사직4구역 재개발 은
1) 동래역 역세권, 전체 평지
부산 지하철 1호선 동래역의 도보 5분여 역세권이고
구역 전체가 평지로 구성되어 단지의 효율적 배치가 가능하여 전체 토지의 활용도가 좋고
향후로는 단지 내외로 이동성 및 접근성 역시 좋은 장점을 가지게 됩니다.
2) 온천천
동래구민이 사랑하는 아름다운 온천천을 곁에 두어
산책과 휴식, 가벼운 운동 등 좋은 자연 환경을 누릴수 있는 큰 강점을 가지고 있습니다.
3) 사직동 우수 학군 + 학원가
바로 인접해 미남초, 내성중이 있어 초품아, 중품아 단지이며
주변으로 여고중, 사직중, 사직고, 동인고, 사직고, 사직여고등 사직동은 많은 우수 학교들이 밀집해 있어
전통적 우수 학군으로 가장 큰 장점을 가지고 있습니다.
이와 더불어,
종합운동장역에서 사직역으로 이어지는 사직동 학원가는
서울 대치동 학원가처럼 외부에서 찾아오는 질좋은 학원들이 밀집해 있어
좋은 교육 환경을 가지고 있습니다.
4) 사업규모와 사업성 체크
현재 계획 1712세대의 대단지로 진행중에 있으며
전체 세대수 대비 조합원 비율은 약 61.6% 정도로
초기 구역들의 높은 비율과 비교하여 상대적으로 양호한 사업성을 가지고 있습니다.
5) 좋은 실거주 환경 + 온천천
동래역 주위로
부산 최고 상권중 하나인 명륜1번가 상권과 함께
대동병원등 많은 병원과 대형마트 메가마트등 여러 상가들이 밀집해 있고
재래시장 동래시장과 차량 3분여로는 롯데백화점 동래점도 있어 이용에 좋고
도보 거리에 동래구청도 있어 편리 합니다.


4. 시공사 대우건설 주요 제안 : 사직4구역 재개발 :
* 사공사 : 대우 건설
* 제안 단지명 : 푸르지오 그라니엘
제안된 단지명 그라니엘은 ‘Grand(위대한)’ + 프랑스어 *Ciel(하늘)*의 결합으로,
지역 대표 주거 랜드마크를 뜻하고 있습니다.





5. 예상 타입별 세대수 : 사직4구역 재개발 :
조합에서는 전체 1712 세대의 대단지로 계획하였고
시공사 측에서는 1730세대로 제안하였는데
향후 건축심의 등 진행과정에서 타입별세대수는 최종 확정 될것으로 보입니다.



6. 사업 특징 간략 정리 : 사직4구역 재개발 :
- 동래역 역세권, 평지, 온천천, 초품아, 중품아
- 시세 좋고, 실거주 좋고, 학군 좋은 사직동
- 온천천, 우수한 동래역 주변 상권




사직4구역 및
부산 전역 재개발에 대해 궁금하신 사항은 방문 또는 연락주시면 자세히 설명 드리겠습니다.


고맙습니다.
건강한 하루 하루 되십시오.
입주권 및 분양권을 비롯하여
부산 경남 건물 토지 상가 주택 등 부동산 물건 투자 및 물건 접수 받습니다.

[ 부산, 양산, 경남 / 상가 / 건물 / 토지 / 재개발 / 재건축 전문으로 신속하고 정직하게 거래 합니다. ]
[ 매수 / 매도 / 임대 물건 접수 받습니다. ]
'렛츠부동산 > 재개발' 카테고리의 다른 글
| 범천4구역 재개발 : 확정 감정가 + 평형 타입 지정 매물 (0) | 2026.02.11 |
|---|---|
| 광안9구역 재개발 : 매물 정보 업데이트 및 진행 일정 체크 (0) | 2026.02.10 |
| 가야1구역 재개발 : 재분양 신청된 매물 + 철거 진행 상황 (0) | 2026.02.07 |
| 조합설립인가 앞둔 - 연산11구역 재개발 : 현 소액 매물 (1) | 2026.02.06 |
| 대연8구역 재개발 : 현 추천 매물 && 감평통지, 분양신청 진행 일정 (0) | 2026.02.05 |

