글
사직4구역 재개발 : 최근 진행 소식 (시공사) 및 소액 매물

안녕하세요
학군 프리미엄 사직동
사직4구역 재개발 : 최근 진행 소식 및 현 매물 소개해 드리겠습니다.
동래역 역세권
사직4구역 재개발 은
전통적 주거 우수지 동래구에
부산의 목동, 학군 우수지역으로 꼽히는 사직동, 우수 입지 재개발
* 진행 > 구역지정고시 > 조합설립인가 >> 시공사 선정 진행중
재개발 사업 진행의 가장 중요한 파트너 시공사 선정 절차를 진행중에 있는데
현재, 시공사는 우선협상대상을 선정하여 수의계약으로 진행 예정입니다.


1. 사직4구역 재개발 : 소액 매물 소개 :
그럼, 우수 입지
사직4구역 재개발 : 소액 매물 정보 드리겠습니다.
* 좋은 입지로 꾸준한 거래와 관심이 높은 구역 입니다


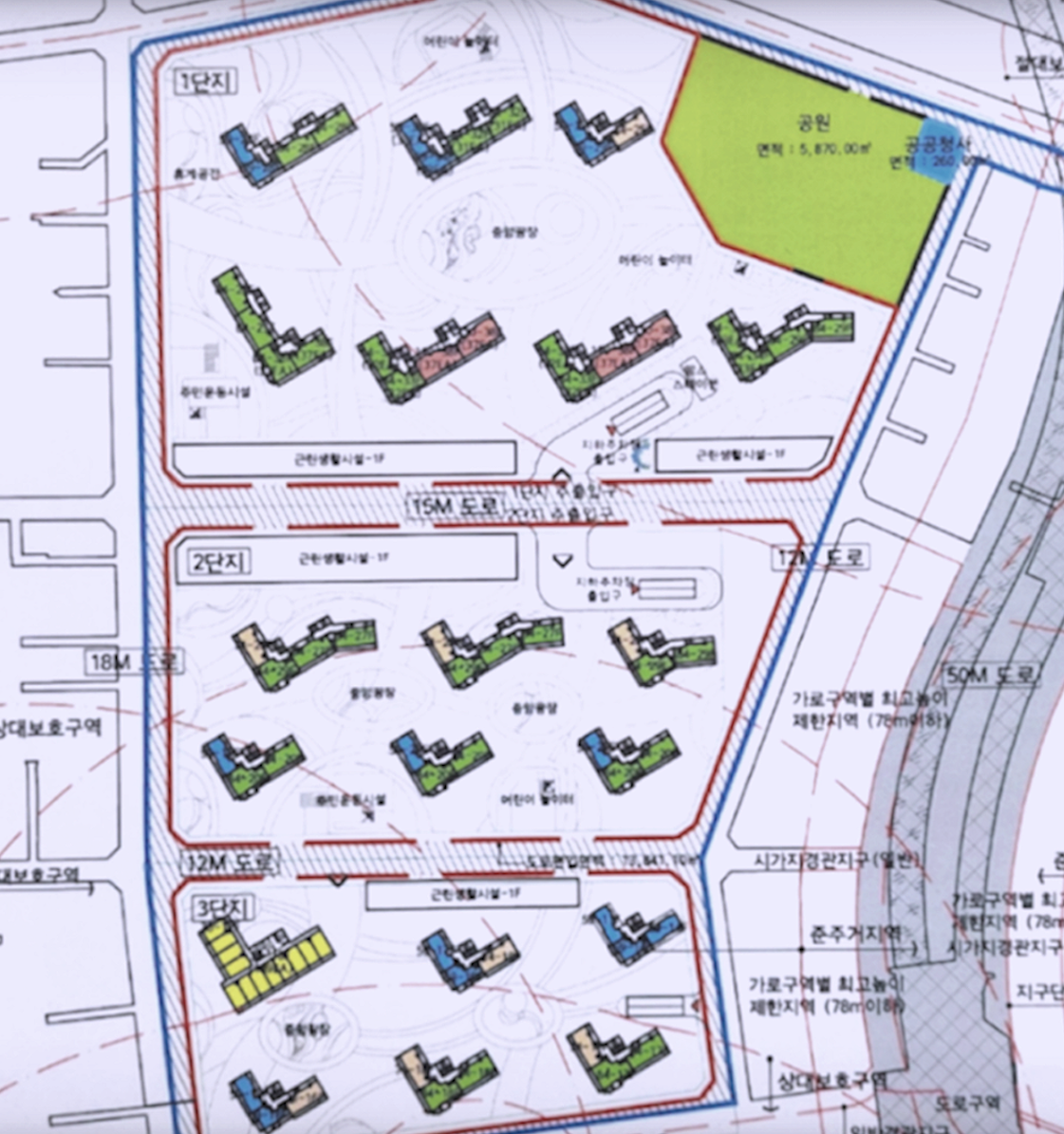
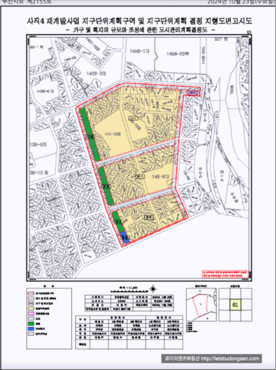
2. 사직4구역 재개발 : 사업 개요 및 입지 :
사직동 학군프리미엄
동래구 사직4구역 재개발 은
1) 사직동 우수 학군 + 학원가
바로 인접해 미남초, 내성중이 있어 초품아, 중품아 단지이며
주변으로 여고중, 사직중, 사직고, 동인고, 사직고, 사직여고등 사직동은 많은 우수 학교들이 밀집해 있어
전통적 우수 학군으로 가장 큰 장점을 가지고 있고
이와 더불어,
종합운동장역에서 사직역으로 이어지는 사직동 학원가는
서울 대치동 학원가처럼 외부에서 찾아오는 질좋은 학원들이 밀집해 있어
좋은 교육 환경을 가지고 있습니다.
2) 동래역 역세권, 전체 평지
부산 지하철 1호선 동래역의 도보 5분여 역세권이고
산이 많은 부산에서 구역 전체가 평지로 구성되어
단지의 효율적 배치가 가능하여 전체 토지의 활용도가 좋고
향후로는 단지의 내외로 이동성 및 접근성 역시 좋은 장점을 가지게 됩니다.
3) 바로 앞의 내성교차를 기점으로 주변 환경

4) 사업규모와 사업성 체크
전체 1712세대의 대단지로 계획하고 진행중에 있으며
조합원 비율은 약 61.6% 정도로 초기 구역들의 높은 비율과 비교하여
상대적으로 양호한 사업성을 가지고 있습니다.
5) 좋은 실거주 환경 + 온천천
아름다운 온천천을 곁에 두어
산책과 휴식, 가벼운 운동 등 좋은 자연 환경을 누릴수 있는 큰 강점을 가지고 있습니다.
실거주 환경으로는
동래역 주위로 대동병원등 많은 병원과 대형마트 메가마트등 여러 상가들이 밀집해 있고
재래시장 동래시장과 차량 3분여로는 롯데백화점 동래점도 있어 이용에 좋고
도보 거리에 동래구청도 있어 편리 합니다.


3. 사직4구역 재개발 : 얘상 타입별 세대수 :
아직 초기 수치로 진행과정에서 변동 될수 있으니 기준 수치로 참고해 보시면 됩니다



4. 사직4구역 재개발 : 사업 주요 특징 간략 정리 :
- 시세 좋고, 실거주 좋고, 학군 좋은 사직동
- 온천천, 우수한 동래역 주변 상권
- 동래역 역세권, 평지, 온천천, 초품아, 중품아




5. 사직4구역 재개발 : 사업 진행 상황. 일정 :
조합설립인가를 완료하고 시공사 선정 절차를 진행중에 있습니다..
[ 사타통과 > 정비구역 지정고시 > 조합설립인가 >> 시공사 선정중 ]



사직4구역 재개발의 추가적인 정보는 아래 페이지를 참고 바랍니다.
사직4구역 재개발 : 소액 매물 + 시공사 선정 총회 1월 예상
안녕하세요 로이의렛츠부동산 ( JAK 제이에이케이 부산 ) 입니다. 오늘은 학군 프리미엄 사직동 사직4구...
blog.naver.com
사직4구역 및
부산 전역 재개발에 대해 궁금하신 사항은 방문 또는 연락주시면 자세히 설명 드리겠습니다.


고맙습니다.
건강한 하루 하루 되십시오.
입주권 및 분양권을 비롯하여
부산 경남 건물 토지 상가 주택 등 부동산 물건 투자 및 물건 접수 받습니다.

[ 부산, 양산, 경남 / 상가 / 건물 / 토지 / 재개발 / 재건축 전문으로 신속하고 정직하게 거래 합니다. ]
[ 매수 / 매도 / 임대 물건 접수 받습니다. ]
'렛츠부동산 > 재개발' 카테고리의 다른 글
| 부산 시민공원 촉진4구역 재개발 현 진행상황과 매수 가치 (0) | 2025.11.22 |
|---|---|
| 우동3구역 재개발 : 타입별 매물 정보 그리고 최근 관처 공람 소식 (1) | 2025.11.21 |
| 부산 시민공원 촉진3구역 재개발 : 현 가능 매물 (0) | 2025.11.19 |
| 서금사A구역 재개발 : 입지, 특징, 진행 & 매물 (0) | 2025.11.18 |
| 광안9구역 재개발 : 소액 매물 & 사타 일정 (11.24) (0) | 2025.11.17 |

