글
동래역 역세권 사직4구역 재개발 소액 매물 과 일정

안녕하세요
동래역 역세권 사직4구역 최근 진행, 예상 일정 & 소액 물건 정보 소개 드리겠습니다.
사직4구역 재개발은 현재 구역 지정을 위한 심의 및 보완, 협의중에 있으며


그럼,
사직4구역 재개발 현재 최저 소액 매물 소개해 드리겠습니다.
* 엄선한 매물만 소개 드립니다.



동래역 역세권 사직3구역 재개발 의
가장 장점인 주변의 입지적 특징을 보면
바로 인근에 위치한 내성 교차로를 중심으로
1. 명륜1번가 동래 중심 상권,
2. 재건축 대장주중의 하나인 동래 럭키 ( 향후 )
3. 온천천 그리고 수안 재건축 ( 향후 )
4. 사직4구역 및 수많은 메디컬 상권
으로 조성되어 있어 현재로서도 좋은 입지이나 향후로도 주변 일대가 더욱 기대가 되는 곳 입니다.



사업규모와 입지적으로는
부산 중심 지하철 1호선 동래역의 도보 5분여의 역세권이며
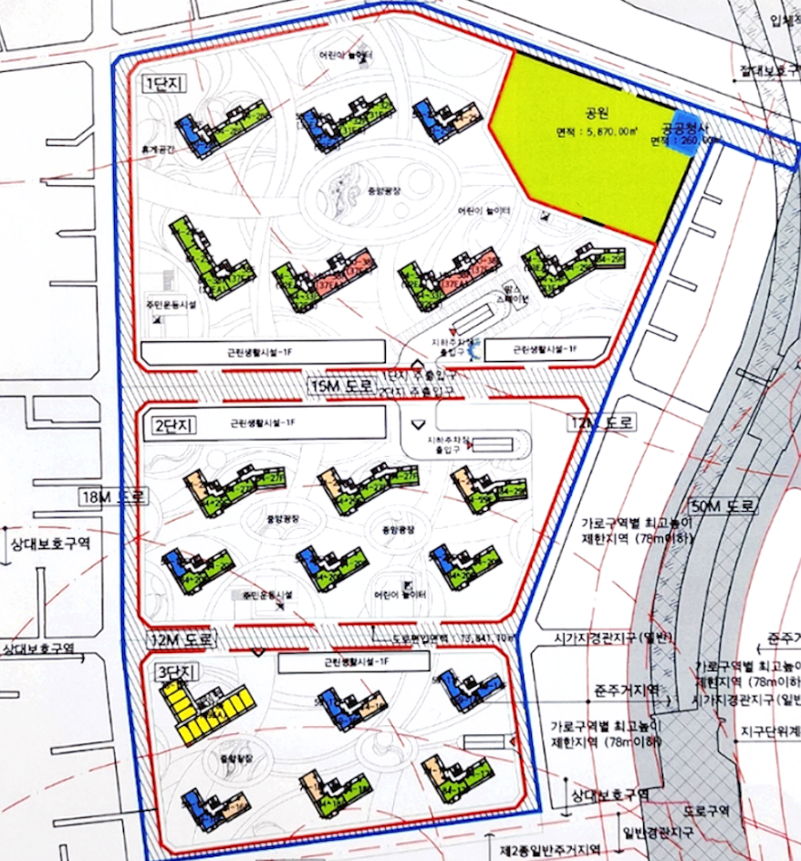
전체 약 1600여 세대의 대단지로 계획하고 있습니다.
부산에서 드문 구역 전체가 평지로 되어 있어
단지내의 이동성과 접근성 그리고 대지의 활용도 및 단지 배치가 편리합니다.
미남초와 내성초가 도보3분여로 초품아, 중품아 단지이고
도보 3분여 온천천이 위치하고 있어서 산책, 휴식 운동하기데도 좋은 장점을 가지고 있습니다.
우수한 한원들이 밀집해 있어 외부에서도 일부러 찾아오는
사직동 학원가 역시 가까이 있고 주변 학군 역시 좋습니다.


사직4구역 재개발 추정 타입별 세대수 입니다.
현재 수치로 보면
조합원 분들은 84타입 이상이 배정가능해 보이며
조합원 비율이 최근 예정지들에 비해서 상대적으로 낮아 양호합니다.


사직4구역 주요 입지적 특징을 소개 드립니다.
- 동래역 역세권, 초품아, 중품아, 학군좋은, 평지, 온천천, 동래 상권 등.






사직4구역 및
부산 전역 재개발에 대해 궁금하신 점은 방문 또는 연락주시면 자세히 설명드리겠습니다.


고맙습니다. 좋은 하루 하루 되십시오.
부산 전역 재개발 입주권 및 분양권을 비롯하여
부산 경남 건물 토지 상가 주택 등 부동산 물건 투자 및 물건 접수 받습니다.

[ 부산, 양산, 경남 / 상가 / 건물 / 토지 / 재개발 / 재건축 전문으로 신속하고 정직하게 거래 합니다. ]
[ 매수 / 매도 / 임대 물건 접수 받습니다. ]
'렛츠부동산 > 재개발' 카테고리의 다른 글
| 가야1구역 재개발 - 최근 진행 소식, 일정 & 타입별 최저 매물 (0) | 2024.05.16 |
|---|---|
| 수영역 역세권 광안4구역 재개발 최저 매물 과 현 진행 체크 (0) | 2024.05.15 |
| 안락1구역 재개발 : 구역 지정을 위한 공람공고 소식 & 매물 (0) | 2024.05.13 |
| 하단2구역 재개발 소액 매물 & 구역 특징, 진행 일정 (0) | 2024.05.11 |
| 문현1구역 재개발 건축심의중 & 최저 매물 (1) | 2024.05.10 |

