글
하단2구역 재개발 소액 매물 & 구역 특징, 진행 일정


안녕하세요.
도시철도 개발호재
하단2구역 재개발 소액 매물 & 구역 특징, 진행 일정 소개해 드리겠습니다.


미래가치
하단2구역 은 도시철도 개발호재를 가지고 있어 미래가 기대되는 재개발 구역으로
현재는 정비구역 지정을 위한 심의를 진행 중에 있습니다.


그럼, 진행 소식에 이어
하단2구역 재개발 인수가 1억 언더소액 매물 정보 소개 드립니다.



개발호재
하단2구역 재개발은
하단역의 트리플 환승센터로 도시철도의 주요 지점이 될 예정이어서
주변일대의 미래가치가 기대가 되는 재개발 구역입니다.
부산지하철 1호선 하단역이 추가로 사상하단선과 하단 녹산선까지 개통이 되면
트리플 환승센터로 하단은 교통의 중심지로 변모가 될 예정입니다.
- 사상하단선은 사상과 하단을 잇는 노선으로 현재 공사중이며 2026년 준공을 목표로 하고 있으며
- 하단녹산선은 하단에서 명지와 녹산까지 그리고 향후 가덕도 신공항까지 연결되수 있어 중요한 도시 철도로 현재 예비타당성이 통과된 상태 입니다.
이렇듯, 하단역이 교통의 중심지로 변모가 되면
상권의 확장과 주변 주거지의 가치가 크게 상승할 것으로 가까이 있는 하단2구역 역시 큰 혜택이 됩니다.

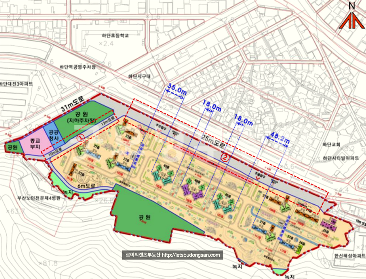
사업 규모와 주거 환경을 보면
전체 약 2000여세대의 대단지로 계획중이며
하단역 도보 5분의 역세권으로 장점을 가지고 있습니다.
하단초등학교가 도보 3분여의 거리에 위치해 있고
사하구에서 가장 상권이 살아 있는 곳중 하나인 하단역 인근에 많은 병원, 상가들이 밀집해 있어
이용이 편리합니다.
바로 앞의 괴정천은 현재 생태하천으로 복원중에 있어 좋은 거주환경이 될것이며
인근으로 에덴공원과 낙동강변, 을숙도 친환경 생태공원등도 바로 가까이에 인접해 있어 좋습니다.
교통적으로는
위에 설명드린 도시철도를 비롯하여
강변대로를 따라 북구와 시외 이동이 편리하고 신항과 김해공항과 가덕도 신공항등으로 이동이 좋고
낙동대로를 따라서는 개발예정인 대티2터널을 통해 부산 남포동등과 부산역으로 이동도 좋습니다.


하단2구역 재개발 예상 각 타입별 세대수 소개 드립니다.


위에서 잠깐 언급 드린
하단2구역 재개발 미래가치를 가늠할 도시철도 개발 호재를 다시 정리하였습니다.
사상하단선은 북구에서 하단방향으로의 접근성
하단녹산선은 명지, 에코델타시티를 비롯 부산 신항과 향후 가덕 신공한까지 연결이 기대되어
하단역 일대가 부산 신항과 가덕 신공항 등 외부로 연결되는 주요 대중 교통 중심지, 환승지로의
변모가 기대 됩니다.
하단역이 교통의 중심지로 변모가 되면
상권의 확장과 주변 주거지의 가치가 크게 상승할 것으로 기대 되고 있습니다.




하단2구역 재개발 주요 입지적 특징을 정리하였습니다.
- 도시철도 개발호재
- 초품아, 숲세권, 강세권,
- 대티터널, 괴정생태하천, 하단유수지 문화센터 등






하단2구역 재개발 일자별 주요 진행사항 및 향후 일정 정리 등 추가 정보는 아래 페이지를 참고 부탁드립니다.
하단2구역 재개발 : 구역특징, 개발호재 체크 & 1억 언더 소액 인수 매물
안녕하세요. 로이의렛츠부동산 ( JAK 제이에이케이 부산 ) 입니다. 오늘은 개발호재 좋아 미래 기대 되...
blog.naver.com
하단2구역 및
부산 전역 재개발에 대해 궁금하신 점은 방문 또는 연락주시면 자세히 설명 드리겠습니다.


고맙습니다. 건강한 하루 하루 되십시오
부산 전역 재개발 입주권 및 분양권을 비롯하여
부산 경남 건물 토지 상가 주택 등 부동산 물건 투자 및 물건 접수 받습니다.

[ 부산, 양산, 경남 / 상가 / 건물 / 토지 / 재개발 / 재건축 전문으로 신속하고 정직하게 거래 합니다. ]
[ 매수 / 매도 / 임대 물건 접수 받습니다. ]
'렛츠부동산 > 재개발' 카테고리의 다른 글
| 동래역 역세권 사직4구역 재개발 소액 매물 과 일정 (0) | 2024.05.14 |
|---|---|
| 안락1구역 재개발 : 구역 지정을 위한 공람공고 소식 & 매물 (0) | 2024.05.13 |
| 문현1구역 재개발 건축심의중 & 최저 매물 (1) | 2024.05.10 |
| 영도5구역 재개발 조합원 총회 소식 & 진행 체크 & 매물 (0) | 2024.05.08 |
| 광안5구역 재개발 : 매물 & 구역지정 공람공고, 주민설명회 개최 소식 (0) | 2024.05.07 |

