글
동래구 사직4구역 재개발 진행 일정과 소액 물건


안녕하세요.
입지우수 사직4구역 재개발 구역 지정 심의중 & 소액 물건 소개 드리겠습니다.

동래역 역세권
사직4구역 재개발은 구역지정 신청되어 현재 심의 및 보완 중에 있습니다.
타 예정지들에 비해 추진위와 주민들의 열의가 높아 상대적으로 빠르게 진행되고 있습니다.



그럼,
사직4구역 재개발 소액 물건 정보 정리하여 소개해 드리겠습니다.


동래역 역세권
사직4구역 재개발 의
입지적 특징을 먼저 말씀 드리면



입지 좋은
사직4구역 재개발 은
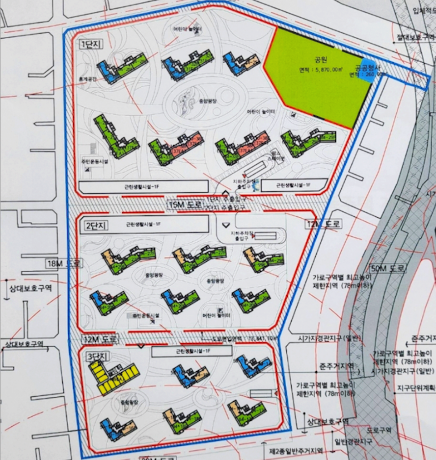
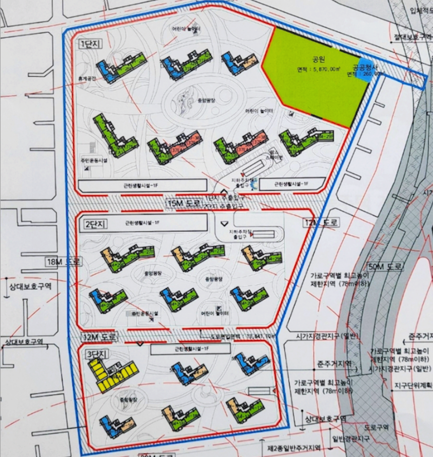
전체 약 1600여 세대의 대단지로
부산 지하철1호선, 4호선 환승역인 동래역 5분여의 역세권 이고
도보 3분여의 미남초와 내성중학교가 바로 인접해 있는 초품아 / 중품아 , 그리고
우수한 학군을 자랑하는 곳이 사직동에 위치하여 사직동 학원가를 이용가능합니다
도보 5분여 온천천이 위치하고 있어서 휴식, 산책, 운동하기에도 좋은 입지를 가지고 있으며
구역 전체가 거의 평지로 볼수 있어
산이 많아 평지 아파트가 드문 부산에서 실제 거주하여 보시면 이동성과 접근성등 큰 장점이 됩니다.



구역지정심의중
사직4구역 재개발 간략한 주요 특징을 다시한번 정리 하였습니다.
- 동래역 역세권, 초품아, 중품아, 학군좋은, 평지, 온천천, 동래 상권 등





입지 좋은
사직4구역 재개발의 예상 타입별 세대수 입니다.
전체 조합원 숫자가 약 900+@ 정도로 예상되어
조합원분들은 감정가의 크기에 상관없이 모두 84타입이 가능해 보입니다.


입지 좋은
사직4구역 재개발 현재까지의 진행 상황을 정리 등 추가 정보는 아래 페이지를 참고 부탁드립니다.
https://blog.naver.com/himang1974/223318442636
동래역 역세권 - 사직4구역 재개발 - 신축원룸등 소액 매물 & 현재 구역 지정 심의중
안녕하세요. 로이의렛츠부동산 ( 제이에이케이 부산 부동산중개법인 ) 입니다. 사직4구역 재개발 [ 입지 좋...
blog.naver.com
'렛츠부동산 > 재개발' 카테고리의 다른 글
| 광안5구역 재개발 소액 매물 (0) | 2024.01.17 |
|---|---|
| 덕천3구역 재개발 1600인수 소액 매물 등 (0) | 2024.01.16 |
| 시민공원 촉진3구역 재개발 매수 가능 최저 매물 (1) | 2024.01.13 |
| 부곡2구역 재개발 최근상황 및시세보다 낮은 매물 (0) | 2024.01.12 |
| 사직3구역 재개발 구역 지정 (1월중순예상) & 소액 매물 (0) | 2024.01.11 |



