글
동래구 사직4구역 재개발 소액 물건
렛츠부동산/재개발
2023. 12. 4. 08:53


안녕하세요.
입지우수 사직4구역 재개발 예정지 구역 지정 심의중 & 소액 물건 소개 드리겠습니다.



동래역 역세권
사직4구역 재개발은 구역지정 신청되어 현재 심의 및 보완 중에 있습니다.



동래역 역세권
사직4구역 재개발 예정지 는
입지적 특징으로
내성 교차로를 중심으로
1. 명륜1번가 동래 중심 상권, 2. 재건축 대장주중의 하나인 동래 럭키 ( 향후 )
3. 온천천 그리고 수안 재건축 ( 향후 ) , 4. 사직4구역 및 수많은 메디컬 졍원 상권
으로 조성되어 있어 현재로서도 좋은 입지이나 향후로도 주변 일대가 더욱 기대가 되는 곳 입니다.
( 아래 표 추가 참조 )
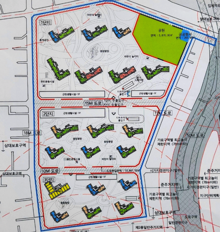
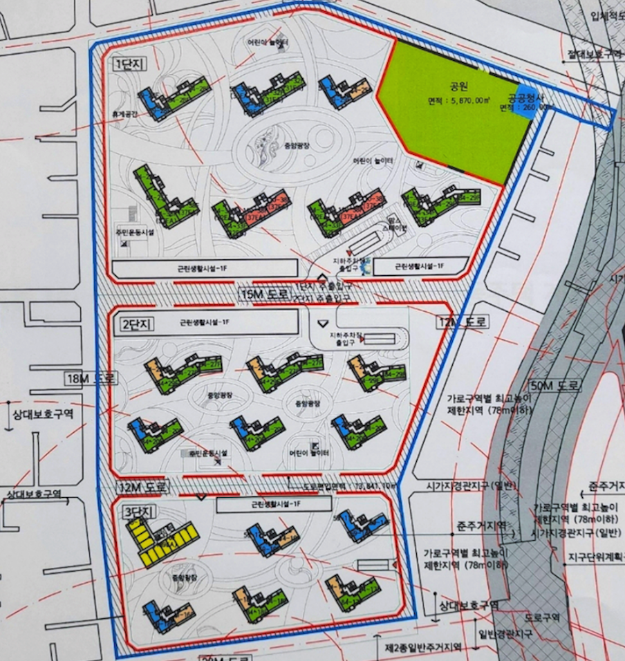
전체 약 1600여 세대의 대단지로
부산 지하철1호선, 4호선 환승역인 동래역 5분여의 역세권 이고
도보 3분여의 미남초와 내성중학교가 바로 인접해 있는 초품아 / 중품아 , 그리고
우수한 학군을 자랑하는 곳이 사직동에 위치하여 사직동 학원가를 이용가능합니다
도보 5분여 온천천이 위치하고 있어서 휴식, 산책, 운동하기에도 좋은 입지를 가지고 있으며
구역 전체가 거의 평지로 볼수 있어
산이 많아 평지 아파트가 드문 부산에서 실제 거주하여 보시면 이동성과 접근성등 큰 장점이 됩니다.




그럼,
사직4구역 재개발 소액 물건 정보 정리하여 소개해 드리겠습니다.


입지적 특징에 이어
사직4구역 재개발 주요 특징을 다시한번 간략히 정리 하였습니다.
- 동래역 역세권, 초품아, 중품아, 학군좋은, 평지, 온천천, 동래 상권 등






사직4구역 재개발의 예상 타입별 세대수 입니다.

'렛츠부동산 > 재개발' 카테고리의 다른 글
| 도심숲세권 초읍1구역 재개발 가격 최저 급매 토지 매물 (0) | 2023.12.06 |
|---|---|
| 서금사6구역 재개발 건축심의 통과 / 소액 매물 (1) | 2023.12.05 |
| (자이더헤리티지) 복산1구역 재개발 새롭게 접수된 급매 (1) | 2023.12.02 |
| (숙등역) 덕천3구역 재개발 예정지 - 소액 인수 매물- 2500부터 (1) | 2023.12.02 |
| 북항 바라보는 초량2구역 재개발 시공사 상황 정리 & 소액 매물 (1) | 2023.12.01 |




