글
사직4구역 재개발 진행체크 & 소액 물건


안녕하세요.
사직4구역 재개발 예정지 구역 지정 신청 준비 일정 & 소액 물건 소개 드리겠습니다.



동래역 역세권
사직4구역 재개발은 정비계획입안 및 구역 지정 신청을 준비중에 있습니다.
사직4구역 재개발은 정비계획 입안 및 구역 지정을 준비하고 있습니다.
2023년 7월 4일 정비구역 지정을 위한 사전타당성 심의가 통과가 되었고
현재 정비계획을 입안중에 있어 10월 경에는 구역 지정 신청이 될 것으로 예상이 됩니다.
타 예정지들에 비해 추진위와 주민들의 열의가 높아 상대적으로 빠르게 진행되고 있습니다.


그럼,
사직4구역 재개발 소액 물건 정보 정리하여 소개해 드리겠습니다.


동래역 역세권
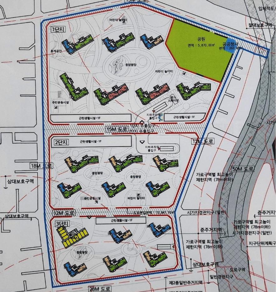
사직4구역 재개발 예정지 는
사업 규모 등으로는
전체 약 1600여 세대의 대단지로
부산 지하철1호선, 4호선 환승역인 동래역 5분여의 역세권 이고
도보 3분여의 미남초와 내성중학교가 바로 인접해 있는 초품아 / 중품아 , 그리고
우수한 학군을 자랑하는 곳이 사직동에 위치하여 사직동 학원가를 이용가능합니다
또한,
도보 5분여 온천천이 위치하고 있어서 휴식, 산책, 운동하기에도 좋은 입지를 가지고 있으며
구역 전체가 거의 평지로 볼수 있어
산이 많아 평지 아파트가 드문 부산에서 실제 거주하여 보시면 이동성과 접근성등 큰 장점이 됩니다.

입지적 특징을 다시 보면
내성 교차로를 중심으로
1. 명륜1번가 동래 중심 상권, 2. 재건축 대장주중의 하나인 동래 럭키 ( 향후 )
3. 온천천 그리고 수안 재건축 ( 향후 ) , 3. 사직4구역 및 수많은 메디컬 졍원 상권
으로 조성되어 있어 현재로서도 좋은 입지이나 향후로도 주변 일대가 더욱 기대가 되는 곳 입니다.
( 아래 표 추가 참조 )



동래역 역세권
사직4구역 재개발의 추진위에서 밝힌 예상 타입별 세대수 입니다.


동래역 역세권
사직4구역 재개발의 특징을 다시한번 간략히 정리 하였습니다.
- 동래역 역세권, 초품아, 중품아, 학군좋은, 평지, 온천천, 동래 상권 등
- 입지부분은 위에 설명 드린것처럼 대단히 우수해 보입니다.





동래역 역세권
사직4구역 재개발 초기이지만 현재까지의 진행 상황등 추가 정보는 아래 페이지를 참고 부탁드립니다.
입지좋은 - 사직4구역 재개발 : 진행상황 현 소액 매물
안녕하세요. 로이의렛츠부동산 ( 제이에이케이 부산 부동산중개법인 ) 입니다. 오늘은 구역지정신청준비 사...
blog.naver.com
'렛츠부동산 > 재개발' 카테고리의 다른 글
| 서금사5구역 재개발 소액 매물 (1) | 2023.10.20 |
|---|---|
| 광안3구역 재개발 소액 매물 & 진행상황 (0) | 2023.10.19 |
| 강변아파트 - 수영1구역 재개발 - 소액 매물 : 구역지정 10/11 (0) | 2023.10.17 |
| 광안5구역 재개발 현 가능 좋은 소액 매물 (0) | 2023.10.16 |
| 동래구 복산1구역 재개발 현 진행소식과 예상일정 그리고 소액 급매물 (1) | 2023.10.14 |





