글
사직4구역 재개발 진행상황과 소액 인수가 물건

안녕하세요.
사직4구역 재개발 진행상황과 소액 인수가 물건 소개 드리겠습니다.

그럼, 먼저
(가칭) 사직4구역 재개발 소액 물건 정보 업데이트 하여 소개해 드리겠습니다.


동래역 역세권
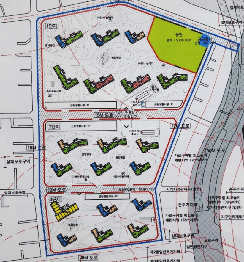
사직4구역 재개발 예정지 는
전체 약 1600여 세대의 평지 대단지에
부산 지하철1호선, 4호선 환승역인 동래역 5분여의 역세권 아파트로 진행이 되고 있습니다.
도보 3분여의 미남초와 내성중학교가 바로 인접해 있는 초품아 / 중품아 이고
우수한 학군을 자랑하는 곳이 사직동에 위치하여 사직동 학원가를 이용가능합니다
도보 5분여 온천천이 위치하고 있어서 휴식, 산책, 운동하기에도 좋으며
부산에서 드문 평지 아파트 단지는
산이 많아 평지 아파트가 드문 부산에서 실제 거주하여 보시면 이동성과 접근성등 큰 장점을
느낄수 있습니다.

진행속도 또한 대단히 빨라
추진위 설립 후 5개월여 만에
재개발의 공식적인 첫 단계인 정비구역 지정을 위한 사전타당성 심의 신청이접수가 되었고
관할구청과 협의 및 보완 완료하고 부산시로 이관 되어 심의중에 있습니다.
추가적으로,
현재 구역 하단 159번지 일원 부분에 잔여지 및 구역 정형화를 위해 추가 편입하여 진행이 되고 있습니다.


동래역 역세권
사직4구역 재개발의 입지적 장점등 특징을 다시한번 간략히 정리 하였습니다.
- 동래역 역세권, 초품아, 중품아, 학군좋은, 평지, 온천천, 동래 상권 등
- 입지적으로 대단히 우수해 보입니다.





동래역 역세권
사직4구역 재개발의 현재 추진위에서 밝힌 예상 타입별 세대수 입니다.



동래역 역세권
사직4구역 재개발 예정지의 노후도 등 추가 정보는 아래 페이지를 참고 부탁드립니다.
[동래역 역세권] 사직4구역 재개발 소액 인수 매물 + 사타심의보완중
안녕하세요. 로이의렛츠부동산 ( 제이에이케이 부산 부동산중개법인 ) 입니다. 오늘은 동래역 역세권 (가칭...
blog.naver.com
입지 기대 : 동래역 역세권
사직4구역 재재발 예정지에 대해 궁금하신 점은 연락주시면 자세히 설명 드리겠습니다.


고맙습니다. 건강한 하루 하루 되십시오.
부산 전역 재개발, 재건축, 분양권, 상가, 주택 등 물건 투자 접수 받습니다.
양산 상가, 정관 상가, 주택, 토지 물건 접수 투자 받습니다.
'렛츠부동산 > 재개발' 카테고리의 다른 글
| 좌천범일통합2지구 재개발 2.9억 2층 주택 매물 (1) | 2023.05.09 |
|---|---|
| 대연3구역 재개발 1단지 매물 : 84타입 등 (0) | 2023.05.06 |
| 가성비 좋은시민공원 촉진4구역 재개발 3억 인수가 소액 매물 (0) | 2023.05.04 |
| 서금사A구역 재개발 건축심의통과 소식과 구역내 최저소액 (0) | 2023.05.03 |
| 사타 통과된 광안5구역 재개발 소액 매물 (0) | 2023.05.02 |


