글
명장2구역 재개발 소액 토지 매물
안녕하세요
구역 지정 신청된 명장2구역 재개발 예정지 토지, 부속토지 등 물건 정보 업데이트 소개해 드리겠습니다.

명장2구역 재개발 예정지는
지난 2022년 1월 14일 정비계획입안을 하여 구역 지정신청이 접수되었습니다.





정비구역 지정 신청된 명장2구역 (명장한신) 재개발 예정지는
명장동의 한신, 동양, 아림파크등 저층 아파트들과 함께
접해있는 주변의 인근 주택가를 포함하여 진행하는 재개발 구역으로
실거주 좋고 학군 좋은 동래구에 위치하고 있기에
명서초, 대명여고, 학산여고, 금정고등 우수 학교들이 바로 인접해 있고
부산 지하철 4호선 명장역에서 도보 5분여 정도의 거리에 위치하고 있으며 반송로 대로를 접하고 있고
가까이에 명장근린공원, 동래 사적공원이 위치해 있어서 숲세권의 장점을 가지고 있습니다
또한,
큰 관심을 가지고 있는 센텀2첨단산업단지 역시 지하철 3개 정류장의 인근에 위치해 있어
향후적으로 신축 아파트의 수요 역시 크게 증가할 것으로 예상이 되기도 하여 가대를 하고 있는 곳입니다.
인근 상황으로는
명장한신의 왼쪽편으로 명장3구역 재개발 예정지, 그리고 윗쪽으로 명장2동 재개발 예정지가 있어
대략 4000여 세대의 대단지의 새로운 신축 아파트 주거타운이 조성이 될 예정입니다.
또한, 아래쪽으로는 이제 동의서 징구 시작한 명장5동 재개발 예정지가 위치해 있습니다.


정비구역 지정 신청된
명장2구역 (명장한신) 재개발 예정지의 입지적 특징을 정리해 드립니다.
주변3개 재개발 예정지가 진행이 되면 총 4000여세대가 넘는 대단지 주거 아파트 타운이 형성이 될 것이고 이로 인해 주변일대가 크게 변할것으로 기대가 됩니다.



그럼
정비구역 지정 신청된 명장2구역 (명장한신) 재개발 예정지의 물건 정보 업데이트 해 드리겠습니다.
- 토지 매물은 주택수에 카운트 되지 않고 공시가 높지 않아 세금부분도 작습니다.
- 주택부속토지는 개별주택가가 1억 언더로 취득세는 1.1%로 유리하며 보유중에 다른 주택의 양도등에 영향을 주지 않습니다. ( 주택수로 카운트 : 취득세, 종부세 )


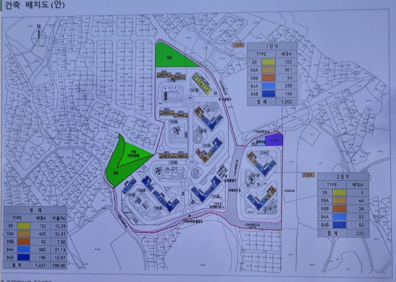
정비구역 지정 신청된 명장2구역 재개발 예정지의 현재 예상 타입별 세대수 및 진행상황 정리등은 아래 페이지 참고부탁드립니다.
동래구 " 명장2구역 재개발(예) : 구역지정신청 " & 소액 토지 매물
안녕하세요. 로이의렛츠부동산 ( 제이에이케이부동산중개법인 ) 입니다. 오늘은 구역 지정 신청된 명장2구...
blog.naver.com
명장2구역 (명장한신) 재개발 예정지에 대해 궁금하신 점은 연락주시면 자세히 설명드리겠습니다.
고맙습니다. 건강한 하루 하루 되십시오
부산전역 재개발, 분양권, 상가, 주택 등 물건 투자 접수 받습니다.
양산 상가, 주택, 토지 물건 접수 투자 받습니다.
'렛츠부동산 > 재개발' 카테고리의 다른 글
| " 서금사5구역 재개발 : 경관심의통과 " & 가능 매물 (0) | 2022.04.05 |
|---|---|
| 사직3구역 재개발 진행소식(사타통과)과 매물 (0) | 2022.04.04 |
| (가칭) 사직4구역 재개발 사타신청소식과 현 매물 (0) | 2022.04.01 |
| 감만1구역 재개발 이주일정등 진행소식과 타입별 매물 (0) | 2022.03.31 |
| 영도5구역 재개발 건축심의와 최저매물 (0) | 2022.03.30 |


