글
범일3구역 재개발 진행상황과 현 매물
안녕하세요.
부산 중심 도심의 강변아파트 범일3구역 재개발 진행 소식과 59, 84타입 물건을 소개해 드립니다.

범일3구역 재개발은 최근 진행 소식을 정리하면
2020년 12월 관리처분계획인가를 받고
2021년 4월 부터 이주를 시작하여 10월까지 공동주택은 이주가 마무리 되었고
일부 상가만이 현재 남아 있는 상태로 2022년에는 철거 및 착공으로 진행이 될 예정으로
재개발의 마무리 단계에 접어들고 있습니다.


부산 중심 도심의 강변아파트 범일3구역 재개발 은
특이하게 기존 동천강옆의 한양아파트가 재건축이 아닌 도시환경정비구역으로 지정되어
재개발이 되는 곳으로 정식명칭은 범일3도시환경정비구역 입니다.
부산지하철1호선 범일역과 2호선 문현역과 도보 5~3분여거리에 위치하고 있어 더블 역세권으로
부산중심도심에 위치해 있어 부산 전역으로 이동이 편리하고
중심도심이기는 하지만 주대로에서 한블록 안쪽으로 들어가서 동천을 끼고 있는
평지 아파트로의 장점도 가지고 있습니다.

동천재생프로젝트가 완료가 되면 중심도심내 강변의 운치 있는 아파트로 그 가치는 크게 상승할 것이며
개방감과 중심도심내의 번잡함이 없다는 장점을 가지고 있습니다.


위에서 언급드린
부산 중심 도심의 강변아파트 범일3구역 재개발의 간략한 특징 을 다시 정리하였습니다.


그럼
부산 중심 도심의 강변아파트 범일3구역 재개발 물건을 소개해 드리겠습니다.
부산시 신축아파트와 주변의 문현1구역, 범천1-1구역과 비교 해보면
상대적으로 시세가 위치적 장점을 가진 것에 비해 저평가 되어 있다고 할 수 있습니다.


부산 중심 도심의 강변아파트
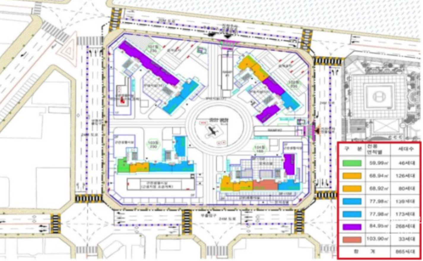
범일3구역 (한양아파트) 재개발의 타입별 세대수와 분양가 등은 아래 페이지를 참고 부탁드립니다.
범일3구역 재개발 : 철거 착공앞둔 진행소식과 현 59, 84 매물 ( 범일 한양아파트 )
안녕하세요. 로이의렛츠부동산 ( 제이에이케이부동산중개법인 ) 입니다. 오늘은 부산 중심 도심의 강변아파...
blog.naver.com
'렛츠부동산 > 재개발' 카테고리의 다른 글
| (가칭) 광안4구역 재개발 예정지 사타심의일소개 + 급매물건 (0) | 2022.03.29 |
|---|---|
| 괴정3구역 재건축 사업시행계획인가 고시 & 매물 (0) | 2022.03.28 |
| 복산1구역 재개발 진행체크 & 소액 뚜껑 (0) | 2022.03.25 |
| 해운대 " 우동3구역 재개발 -New 시공사선정일정 " : 현 가능 매물 (0) | 2022.03.24 |
| (가칭) 부민3구역 재개발 예정지 구역소개, 진행상황, 매물 (0) | 2022.03.24 |



