글
부산 사직4구역 재개발 : 소액 매물과 진행 소식


안녕하세요
동래역 역세권
사직4구역 최근 구역 지정 공람 완료 소식, 일정과 최저 소액 매물 소개해 드리겠습니다.
구역 지정 앞둔
사직4구역 재개발은 이제 연내 구역 지정이 가까이 임박하였습니다.




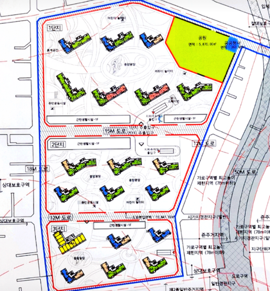
동래역 역세권 사직4구역 은
전쳬 약 1600여 대단지로 계획하고 있으며
부산 핵심 지하철 1호선 동래역의 도보 5분여 역세권 입니다.
산이 많은 부산에서 드분 구역 전체가 평지로 되어 있어서
단지의 배치 및 활용도가 좋고 내외부 이동성, 접근성 역시 좋은 장점을 가지고 있습니다.
내성중학교와 미남초등학교가 도보3분여 거리로 중품아, 초품아 단지가 되며
부산 시민이 사랑하는 온천천이 도보 3분여 거리에 있어 산책, 휴식 운동하기도에도 좋은
강세권의 장점을 가지고 있습니다
사직동하면 떠오르는 것이 사직야구장이 가장 먼저 생각나며
사직 야구장 역시 도보로 이용이 가능합니다.
그런데, 학부모님이라고 하면 가장 먼저 떠오르는 것은 사직동 학원가가 될것인데
우수한 학원들이 밀집해 있어 타 지역에서 찾아올 정도로 좋은 교육 여건을 가지고 있으며
당연히도 주변에 동인고, 사직여고, 사직고등 우수 학교들이 있어 좋은 학군을 가지고 있습니다.

주변의 입지적 특징으로 보면
내성교차로를 중심으로 시계방향으로
1. 부산 재건축 대장주중 하나 동래럭키
2. 동래 중심 상권, 명륜1번가 상권, 메가마트, 대동병원
3. 부산 시민이 사랑하는 온천천 그리고 수안 재건축
4. 병원 밀집된 메디컬 상권 그리고 그 뒤로 사직 4구역
으로 조성되어 있어서
동래역 주변 일대는 향후로도 더욱 크게 기대가 되는 곳임은 분명합니다.



그럼, 궁금하실
사직4구역 재개발 현 가능 소액 매물 정리하였습니다.
[ 물건 간략 특징 ]
원룸은 가격 조정 되어 매매가 최저의 부담 없는 매물이며
신축원룸 신축투룸 역시 가격 조정되어 현재 최저 시세 매물들입니다.


동래역 역세권
사직4구역 재개발 계획 타입별 세대수 소개해 드리곘습니다.
추진위 예성 수치이며
구역 하단 159번지 일원 추가 편입되어 세대수가 조금 더 증가할 것으로 보입니다.


구역 지정 임박한
사직4구역 재개발 전반 주요 입지적 특징 다시한번 정리하였습니다.
- 실거주 좋고 학군 좋은 사직동
- 동래역 역세권, 평지, 온천천, 초품아, 중품아
- 온천천, 우수한 동래역 주변 상권.






구역 지정 임박한
사직4구역 재개발 주요 진행 사항과 이후 예상 일정 소개등 추가 정보는 아래 페이지를 참고 부탁드립니다.
(부산재개발) 동래역 사직4구역 : 구역지정공람완료 & 소액 매물
안녕하세요 로이의렛츠부동산 입니다. JAK 제이에이케이 부산 부동산 중개법인(주)은 언제나 한결같은 ...
blog.naver.com
'렛츠부동산 > 재개발' 카테고리의 다른 글
| (구역지정임박) 수영구 광안5구역 재개발 진행 소식과 최저 매물 (0) | 2024.07.29 |
|---|---|
| 명륜2구역 재건축 구역 특징, 일정 그리고 시세 최저 새롭게 접수된 매물 (0) | 2024.07.27 |
| ( 해운대 삼호가든 ) 우동1구역 재건축 - 진행 소식과 급매 매물 (0) | 2024.07.25 |
| 연산5구역 (망미주공) 재건축 : 진행 소식 (시공사선정진행중) * 매물 (1) | 2024.07.23 |
| 입지 좋은 문현1구역 재개발 진행 소식과 현 최저 매물 (0) | 2024.07.22 |



