글
하단2구역 재개발 : 소액 매물 & 구역 특징, 진행 일정


안녕하세요
구역 지정 심의중 하단2구역 소액 매물들과 구역 특징, 진행 소식 전해 드리겠습니다.
개발호재 품어 기대 되는 하단2구역은
향후 부산시에서 가장 큰 변화를 맞이할 위치중에 하나로 생각되는 곳이어서
관심을 가질수 밖에 없는 곳중에 하나 입니다.




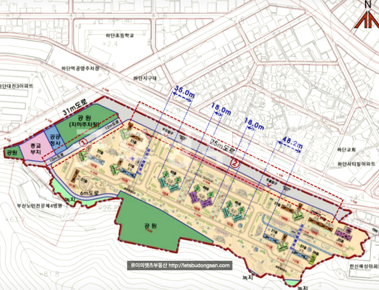
미래모습 하단2구역 재개발 은
약 2000여세대의 대단지로 현재 계획중이며
하단역 도보 5분의 역세권의 장점을 가진 재개발 구역 입니다.
[ 실거주 환경으로 ]
하단초등학교 도보 3분에 위치하고 있으며 인근으로도 많은 학교 있고
사하구 최대 상권인 하단역 인근의 밀집된 많은 병원, 상가들의 이용이 좋으며
바로 인근으로 낙동강을 곁에 있는 것은 물론 이어진 괴정천은 생태하천으로 복원 중에 있으며
인근의 에덴공원, 을숙도 친환경 생태공원, 낙동강변 공원등
자연과 더불어 함께 할수 있는 좋은 거주 환경을 가지고 있습니다.
[ 큰 변화의 중심 : 미래가 기대 되는 ] -- 가장 중요한
역세권 하단역은 향후 큰 변화가 있을 곳입니다.
** 트리플 역세권, 쿼터블 역세권 ** - 신항, 가덕도등과 연결되는 교통의 중심지
1) 부산 메인 지하철 1호선
2) 사상하단선은 사상과 하단을 잇는 노선으로 현재 공사중이며 2026년 준공을 목표로 하고 있으며
3) 하단녹산선은 하단에서 명지와 녹산까지 그리고 향후 가덕도 신공항까지 연결되수 있어 중요한 도시 철도로 현재 예비타당성이 통과된 상태 이며
4) 부산형급행열차(BuTX)는 2025년 하반기 착공을 목표로 지하 대심도로 가덕신공항, 하단역, 북항, 부전역, 오시리아로 연결되며 현재 KDI 민자 적격성 조사를 진행중에 있습니다.
부산시내와 부산외곽으로 연결되는 교통의 중심지로
교통의 중심지는 유동인구 증가로 인한 상권의 발달, 그리고 배후 주거 수요지가 될 수 있습니다.
그래서 기대가 되는 지역입니다.
[ 추가적인 위치적, 교통적으로는 ]
위에 언급 드린 철도는 기본으로
낙동대로를 따라 괴정을 거쳐 대티2터널을 통해 남포동과 부산역으로
강변대로를 통해서는 북구, 부산진구 그리고 부산 신항, 김해공항, 가덕도 공항등 시외로 이동이 좋습니다.



그럼, 기대되는
하단2구역 재개발 소액 투자 매물들 엄선하여 소개 드립니다.


위에서 가장 큰 장점이자 특징이라 말씀드린
하단2구역 재개발 주변을 변화 시킬 도시 철도 개발 호재를 정리 소개해 드립니다.
하단2구역의 역세권으로 하단역은
부산 중심 지하철 1호선은 기본으로
공사 중인 사상하단선을 비롯하여 하단녹산선 그리고 부산형급행열차(BuTX)까지 계획중으로
모두 개통이 되면 쿼터블 환승센터로 변모 하게 됩니다.
이런 다중 환승센터는 유동인구가 크게 증가히게 되고
시외 교통의 시발점으로 인근이 배후 주거지로 될수 있기에 주변 수요 역시 크게 증가할 수 있습니다.






변화 기대 되는
하단2구역 재개발 현재 계획 타입별 세대수 정리하였습니다.


개인적으로 기대 되는
하단2구역 재개발 입지를 바탕으로 한 주요 특징을 다시 정리 소개해 드립니다.
- 도시철도 개발호재, 대티2터널
- 초품아, 숲세권, 강세권,
- 괴정생태하천, 하단유수지 문화센터, 을숙도 생태공원, 낙동강






미래 변화 기대
하단2구역 주요 진행 사항 일자별 정리 및 이후 일정등 추가 정보는 아래 페이지를 참고 부탁드립니다.
(부산 재개발) 하단2구역 : 진행 소식 & 소액 매물 + 쿼터블 환승센터
안녕하세요 로이의 렛츠부동산 입니다. JAK 제이에이케이 부산 부동산은 정직하고 신뢰있게 40여명의 임...
blog.naver.com
하단2구역 및
부산 재개발 부분에 대해 궁금하신 사항은 방문 또는 연락주시면 자세히 설명 드리겠습니다.

고맙습니다. 건강한 하루 하루 되십시오.
부산 전역 재개발 입주권 및 분양권을 비롯하여
부산 경남 건물 토지 상가 주택 등 부동산 물건 투자 및 물건 접수 받습니다.

[ 부산, 양산 / 상가 / 사업부지(토지) / 건물 / 주택 / 재개발 전문으로 신속하고 정직하게 거래 합니다. ]
[ 매수 / 매도 / 임대 물건 접수 받습니다. ]
'렛츠부동산 > 재개발' 카테고리의 다른 글
| 양정3구역 재개발 : 59타입 급매 매물과 함께 84타입 매물 [ 양정 롯데캐슬 프론티엘 ] (0) | 2024.07.20 |
|---|---|
| 감천2구역 재개발 진행 소식 & 급매 토지 매물 (8000) (0) | 2024.07.19 |
| (급매) 영도5구역 재개발 영선1.2 및 주택 최저 급 매물 (0) | 2024.07.17 |
| 부산 동래구 복산1구역 재개발 - 주택 급매 & 구역 소개 (1) | 2024.07.16 |
| 가야1구역 재개발 타입별 매물 & 구역 특징, 진행 일정 (2) | 2024.07.15 |

