글
(구역심의중) 수영구 망미5구역 재개발 예상 일정과 매물 정보


안녕하세요
구역지정심의중인 망미5구역 진행 소식과 매물 정보 소개 드립니다.
망미5구역 재개발은 현재 구역 지정 신청 후 심의 및 보완중에 있습니다.



망미5구역 은
부산지하철3호선 망미역이 도보 15분여로 준역세권으로
도보 이용시는 조금 거리가 있어 보이기도 하여 마을버스를 이용하면 1코스로 편하게 이용이 가능합니다.
전체 1800여세대의 대단지로 계획중이며
배산초등학교와 부산남일고등학교를 바로 접하고 있는 초품아 단지 입니다.
바로 인근으로 재래시장인 망미중앙시장이 있으며
코스트코, 이마트트레이더스 역시 가까이에 위치하여 편리하고
차량5분여 거리에 센텀 신세계백화점, 롯데백화점을 비롯하여 영화의 전당등
센텀의 다양한 문화, 상권 시설들을 이용이 가능하여 센텀 생활권이라고 할수 있습니다.
또한, 수영강변이 도보 15~20분여 거리에 위치하고 있어서
강변 산책과 힐링에도 좋을 것으로 보입니다.
망미동 일대를 보면
바로 앞의 망미 주공아파트가 연산5구역 재건축으로 진행중에 있어서
2개 단지를 합하면 5000여세대의 대단지 아파트 타운이 형성되고
인근으로 망미7구역, 광안A구역등 여러 재개발이 진행중으로
전체 10000여 세대의 신축 아파트 타운이 들어서게 될 예정입니다.



그럼,
망미5구역 현재 가능한 매물 소개 드리겠습니다.
토지 매물은 주택수와 상관 없어 편리하고
아직 초기 구역이라 향후 임대를 고려하면 신축빌라도 괜찮습니다.
최근 감정상 대지가 더 좋은 평가를 받고 있어 주택 물건도 향후 감정가가 더 기대 됩니다.


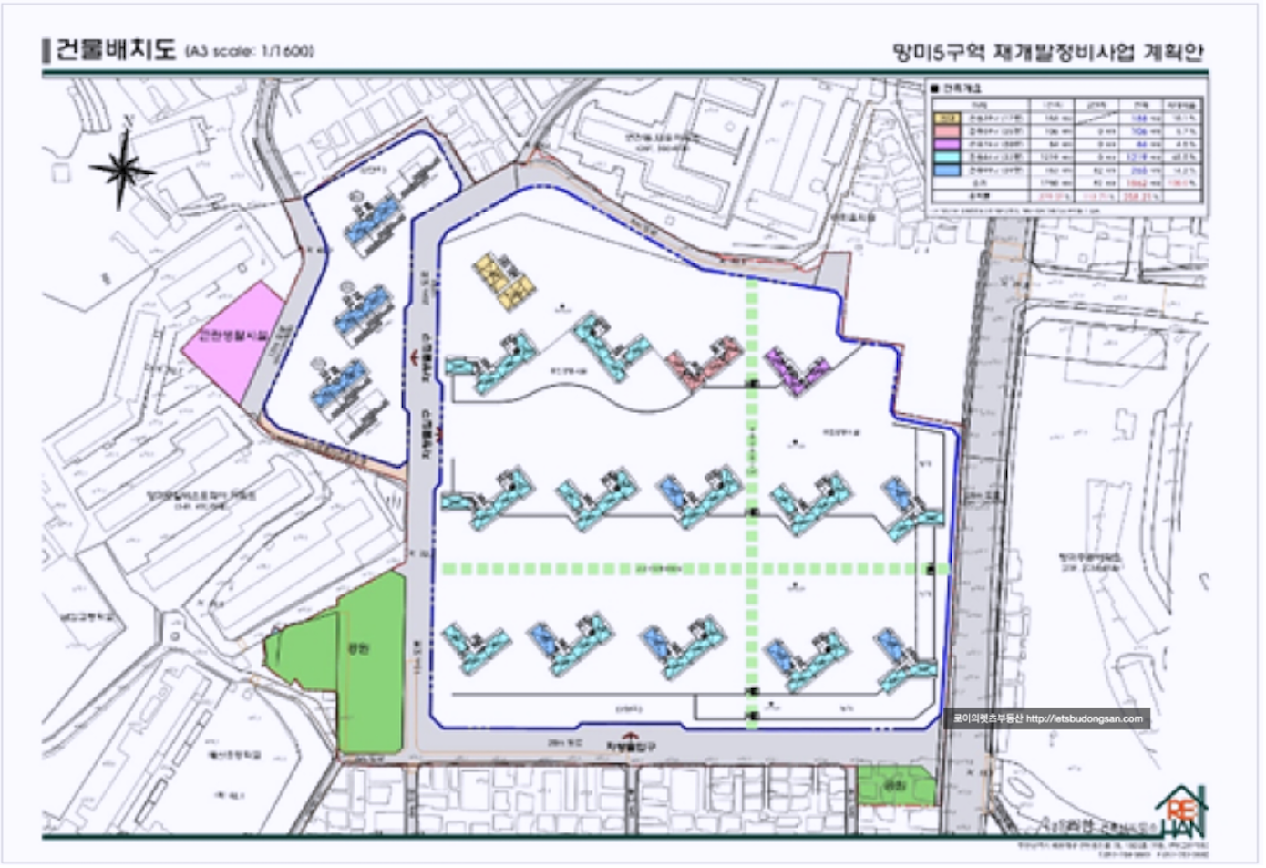
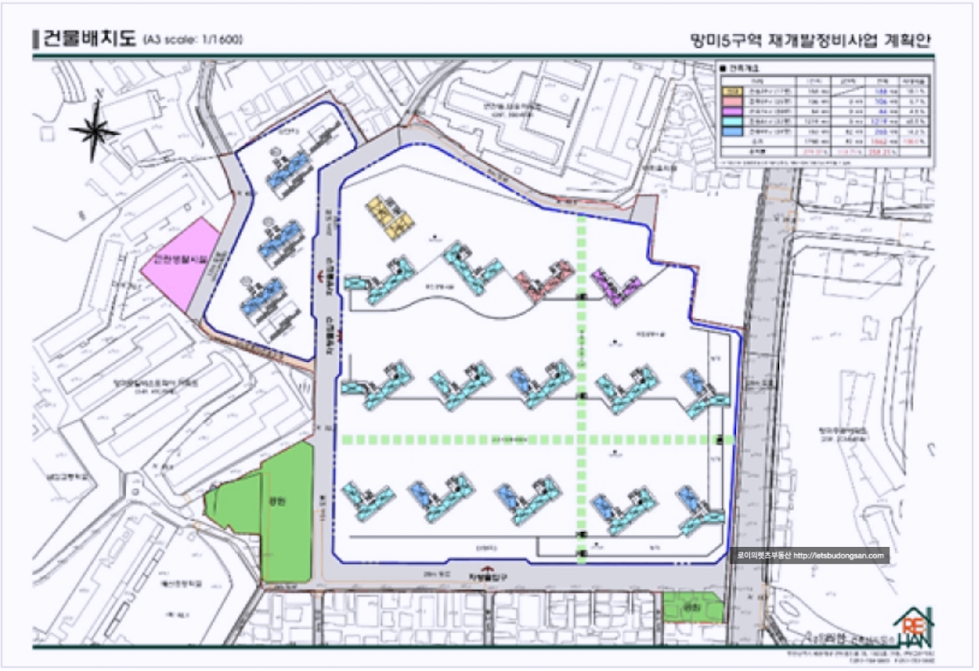
망미5구역 현재 예상 타입별 세대수 입니다.


망미5구역 입지적 주요 특징을 정리하였습니다.
- 망미주공재건축과 함께 대규모 신축아파트 주거타운 형성
- 초품아, 전통시장, 대형마트, 지하철 준 역세권
- 수영강변, 센텀생활권





망미5구역 재개발 주요 진행 사항과 향후 일정을 소개등 추가 정보는 아래 페이지를 참고 부탁드립니다.
망미5구역 재개발 진행 일정 체크 & 매물 안내 : 부산 재개발 수영구
안녕하세요 로이의렛츠부동산 입니다. 제이에이케이 부산 부동산 중개법인(주)은 연산역 1번 출구 바로 앞...
blog.naver.com
망미5구역 및
부산 전역 재개발 관련 궁금하신 부분은 방문 또는 연락 주시면 자세히 설명 드리겠습니다.

고맙습니다. 건강한 하루 하루 되십시오.
부산 전역 재개발 입주권 및 분양권을 비롯하여
부산 경남 건물 토지 상가 주택 등 부동산 물건 투자 및 물건 접수 받습니다.

[ 부산, 양산, 경남 / 상가 / 건물 / 토지 / 재개발 / 재건축 전문으로 신속하고 정직하게 거래 합니다. ]
[ 매수 / 매도 / 임대 물건 접수 받습니다. ]
'렛츠부동산 > 재개발' 카테고리의 다른 글
| (급매) 서금사5구역 재개발 급매 주택 매물 & 진행 일정 (0) | 2024.05.31 |
|---|---|
| 서면 전포동 전포사잇길 신축 2층 상가 급매 매물 (0) | 2024.05.30 |
| 괴정5구역 재개발 - 시공사 선정중 소식 그리고 최저 매물 (0) | 2024.05.29 |
| 사시 심의중 서금사A구역 재개발 최저 맨션 매물과 최근 진행 (0) | 2024.05.27 |
| 광안A구역 (구 망미2) 재개발 진행 소식 그리고 추천 매물 소개 (0) | 2024.05.25 |

