글
광안3구역 재개발 급매 물건 소개
안녕하세요.
올해내 구역지정이 예상되고 있는
광안3구역 재개발 예정지 최근 진행 소식과 물건정보를 소개 드리겠습니다.


공람공고후에 1차 경관심의에서 재심의 의결을 받기는 하였지만
구체적인 재심의 사항이 있기 때문에 보완하여 재심의를 진행하면 되는 문제로
2~3달 가량 조금 늦어지기는 하였지만
2022년 올 연말까지는 정비구역 지정 고시가 될 것으로 예상 됩니다.




그럼, 최근 경관심의 재심의 의결 소식에 이어
광안3구역 재개발 예정지 현 최저 물건 정보를 소개해 드리겠습니다.
- 구역지정전이므로 구역 지정전까지는
다세대 물건은 공동주택가격 1억 언더로 다주택 상관없이 취득세 1.1%가 되는 장점이 있습니다.
이후에는 주택수에 따라 중과가 되어 현재가 좋은 타이밍이 될 수 있습니다.
- 주택부속토지는 보유 양도시에 주택수에 카운트가 되지 않으며 (취득세와 종부세시에는 주택수에만 )


연말 구역지정 예상
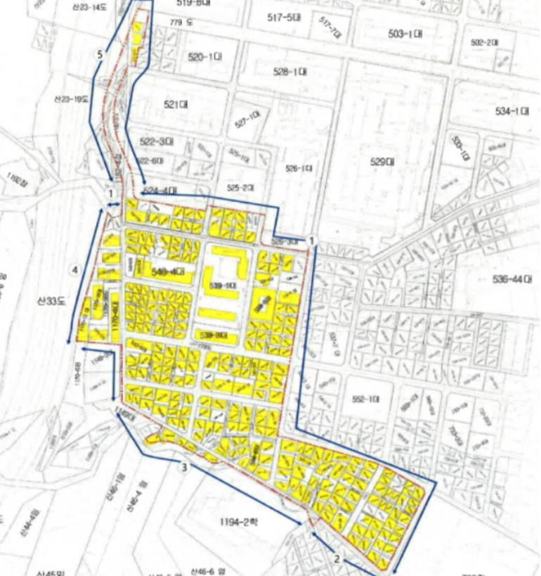
광안3구역 재개발 예정지 는
그동안 GS건설, 포스코 건설에 이어
부산에서 가장 선호도가 높은 삼성물산의 래미안 역시 광안3구역 재개발에 도전을 밝혀
예비조합원분들의 기대가 높아지고 있습니다.
입지적으로
광안역을 도보로 이용가능한 준역세권 지역 이며
호암초등학교, 수영중학교 등이 바로 접해 있는 초품아, 중품아로 학모님들의 선호도가 높을 것이며
바로 아래에는 호암근린공원이 위치해 있고
도보로 광안 해수욕장을 이용 가능한 장점을 가지고 있습니다.
입지좋고 시세도 좋은 수영구에 위치하고 있다는 것이 가장 큰 장점입니다.
진행상황으로는
이미 사전타당성통과 > 정비구역지정 신청 > 공람공고 완료 >
이제 경관심의를 다시 한번 받게 되면 2022 연말경에는 정비구역지정고시가 예상 되고 있습니다.
광안동의 많은 예정지들과는 불확실성이 많이 낮아져 상대적으로 안정적으로 보입니다.


연말 구역지정 예상
광안3구역 (가칭) 재개발 예정지 타입별 세대수는 아래와 같습니다.


연말 구역지정 예상
광안3구역 재개발 예정지 가 위치한
부산 수영구는
전국 최고의 해수욕장중에 하나인 부산 광안리 해수욕장 바닷가을 도보로 이용가능하게 인접해 있으면서도
중심도심 만큼의 실거주 편리함을 그대로 누릴수 있는 장점을 가진 지역으로
부산에서 가장 시세가 높은 곳 중 하나 입니다.


연말 구역지정 예상
광안3구역 재개발 예정지의 아직 초기이지만 현재까지의 진행상황등 추가 정보는 아래 페이지를 참고 부탁드립니다.
수영구 광안3구역 재개발 : 현 급매물 & 연말 구역지정예상
안녕하세요. 로이의렛츠부동산입니다. 제이에이케이부동산중개법인은 2022년에도 변함없이 한결 같은 모습...
blog.naver.com
연말 구역지정 예상
광안3구역 (가칭) 재개발 예정지 에 대해 궁금하신점은 연락주시면 자세히 설명드리겠습니다.



고맙습니다. 건강한 하루 하루 되시기 바랍니다.
부산전역 재개발, 재건축, 분양권, 상가, 주택 등 물건 투자 접수 받습니다.
양산 상가, 주택, 토지 물건 접수 투자 받습니다.

[ 상가 / 주택 / 재개발 / 재건축 전문으로 신속하고 정직하게 거래 합니다. ]
[ 매수 / 매도 / 임대 물건 접수 받습니다. ]
'렛츠부동산 > 재개발' 카테고리의 다른 글
| 복산1구역 재개발 급매 빌라 매물 (0) | 2022.09.27 |
|---|---|
| 부산 동래구 사직동 대로변 최요지 상가 건물 매매 (1) | 2022.09.26 |
| 우동3구역 재개발 현대건설 제안내용보기 & 매물 (1) | 2022.09.21 |
| 광안A구역 ( 구 망미2구역 ) 진행과 매물 (0) | 2022.09.20 |
| 부산 수영구 민락 수변공원 상가 건물 매매 (8층 건물) (0) | 2022.09.20 |

