글
동래구 랜드마크 " 복산1구역 재개발 " 인수가 작은 물건
안녕하세요.
부산 동래구의 재개발 대장 " 복산1구역 " 소액 물건을 소개해 드리겠습니다.


동래구 복산1구역 재개발 은
동래구라는 그 위치적인 장점과 단지의 규모로 인해 많은 분들이 관심을 가지고 있는 구역입니다.
하지만, 많은 분들은 여전히 문화재 라는 이슈 때문에 과연 하는 의문을 가지고 있기는 합니다.
그런 이유로, 여전히 가격적으로 장점을 가지고 있는 구역입니다.
그리고, 지방문화재심의를 통과하면서 한단계 한단계 착착 진행이 되고 있습니다.

그럼
복산1구역 재개발의 그간 진행과정과 이후 진행과정을 한번 살펴 보도록 하겠습니다.


복산1구역 재개발의 사업시행인가는 큰 의미
사람들의 걱정어린 시선을 바꾸는 터닝 포인트
복산1구역 재개발에 있어 사업시행인가 라는 것은 아주 큰 의미를 갖습니다.
재개발에서 사업시행인가는 설계, 경관등 대부분의 많은 것들이 결정이 되어 지는 것으로
과연 진행이 될까라는 걱정을 한번에 해소하는 터닝포인트가 되기에
전반적으로 시세등에 큰 영향을 주리라 생각이 됩니다.

게다가
복산1구역 재개발은


이런 질적인 차이를 가진 복산1구역 재개발은
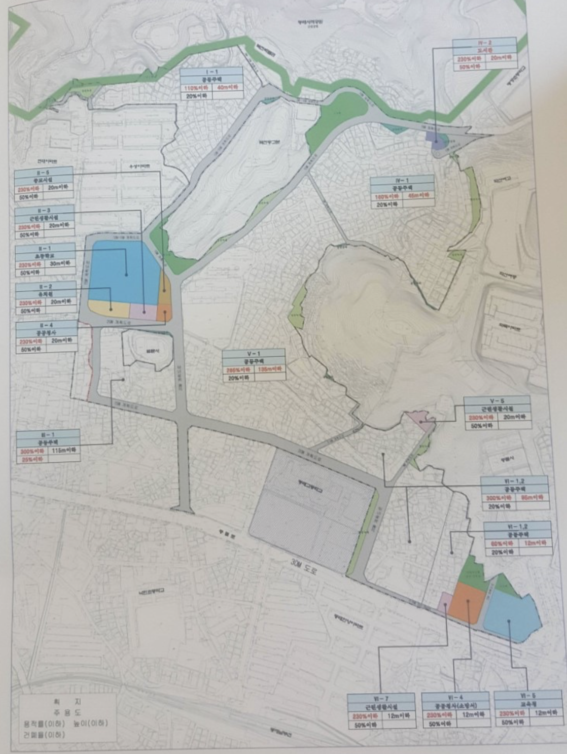
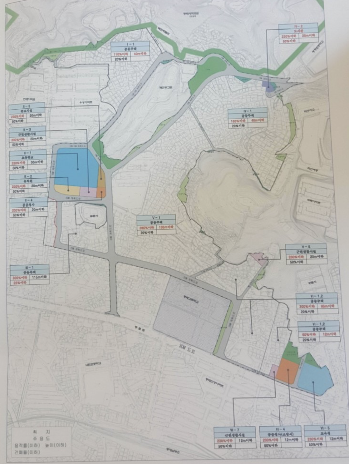
타입별 세대수를 보더라도 일반적 평형이 84타입을 초과하는 평형이 25% 넘어서
프리미엄 고급 아파트를 지향하고 있는 것을 알수 있습니다


그럼
매수 가능하신 복산1구역 물건 소개해 드립니다.
|
복산1구역 매수가능 하신 물건 |
|||
|
종류 |
연립 |
빌라 |
빌라 |
|
면적 |
14.69평 |
27평 |
26평 |
|
매매가 |
1억 6500 |
2억 1000 |
2억 5500 |
|
임차 |
5500 |
6500 |
9000 |
|
인수가 |
1억 1000 |
1억 4500 |
1억 6500 |
|
특징 |
소액 급매 물건 올수리 |
위치가 조금 높으나 올수리, 전세가낮음 |
위치좋고 평지 상태 A급 물건 |
|
위 물건에 관심이 있으신 분들은 연락주시면 자세히 설명 드리겠습니다. |
그럼 마지막으로
복산1구역 재개발의 특징을 간략히 살펴 보겠습니다.
복산1구역 재개발 에 관심이 있으신 분들은 연락주시면 자세히 설명 드리곘습니다.




고맙습니다.





[ 상가 / 주택 / 재개발 / 재건축 전문으로 신속하고 정직하게 거래 합니다. ]
[ 매수 / 매도 / 임대 물건 접수 받습니다. ]
'렛츠부동산 > 재개발' 카테고리의 다른 글
| 부산 재개발 - 시민공원 촉진3구역 물건 (0) | 2019.08.27 |
|---|---|
| 대연동 재개발 대연3구역 각각 타입별 물건 소개 (0) | 2019.08.25 |
| 부산 재개발 촉진3구역 최근소식(특별건축구역) (0) | 2019.08.21 |
| 범천4구역 재개발 - 철도지하화 호재 있는 - 소액물건 (0) | 2019.08.20 |
| 이편한세상시민공원(전포1-1구역재개발) 107,84,107+59 조합원물건 (0) | 2019.08.17 |

