글
사직4구역 재개발 : 현 소액 매물 & 구역 특징, 진행 상황 체크

안녕하세요
조합 설립중
사직4구역 재개발 : 현 소액 매물 & 구역 특징, 진행 상황 체크 정리 드리겠습니다.


1. 사직4구역 재개발 : 간략 요점 및 최근 진행
우수 입지
사직4구역은
학군 좋고, 실거주 좋아, 시세도 좋은 동래구 사직동에 위치하며
동래구 중심 동래역 역세권 대단지로 주변 환경 좋고 입지 우수해 기대 되는 재개발 구역입니다.
최근 진행 간략
- 2025년 1월 2일 조합설립추진위 구성승인
+ 추진위를 통해 주민 설명회, 창립 총회를 거쳐
- 2025년 중순경 조합설립인가 예정
- 2025년 하반기 시공사 선정 절차 진행


2. 사직4구역 재개발 : 현재 가능한 물건 체크
그럼, 역세권 입지
사직4구역 재개발 : 괜찮은 소액 매물 정리, 소개해 드리겠습니다.
* 실거주 좋은 동래구, 역세권 미래 기대되는 입지를 가지고 있습니다.


3. 사직4구역 재개발 : 개요 및 입지 체크
입지 우수
사직4구역 재개발은
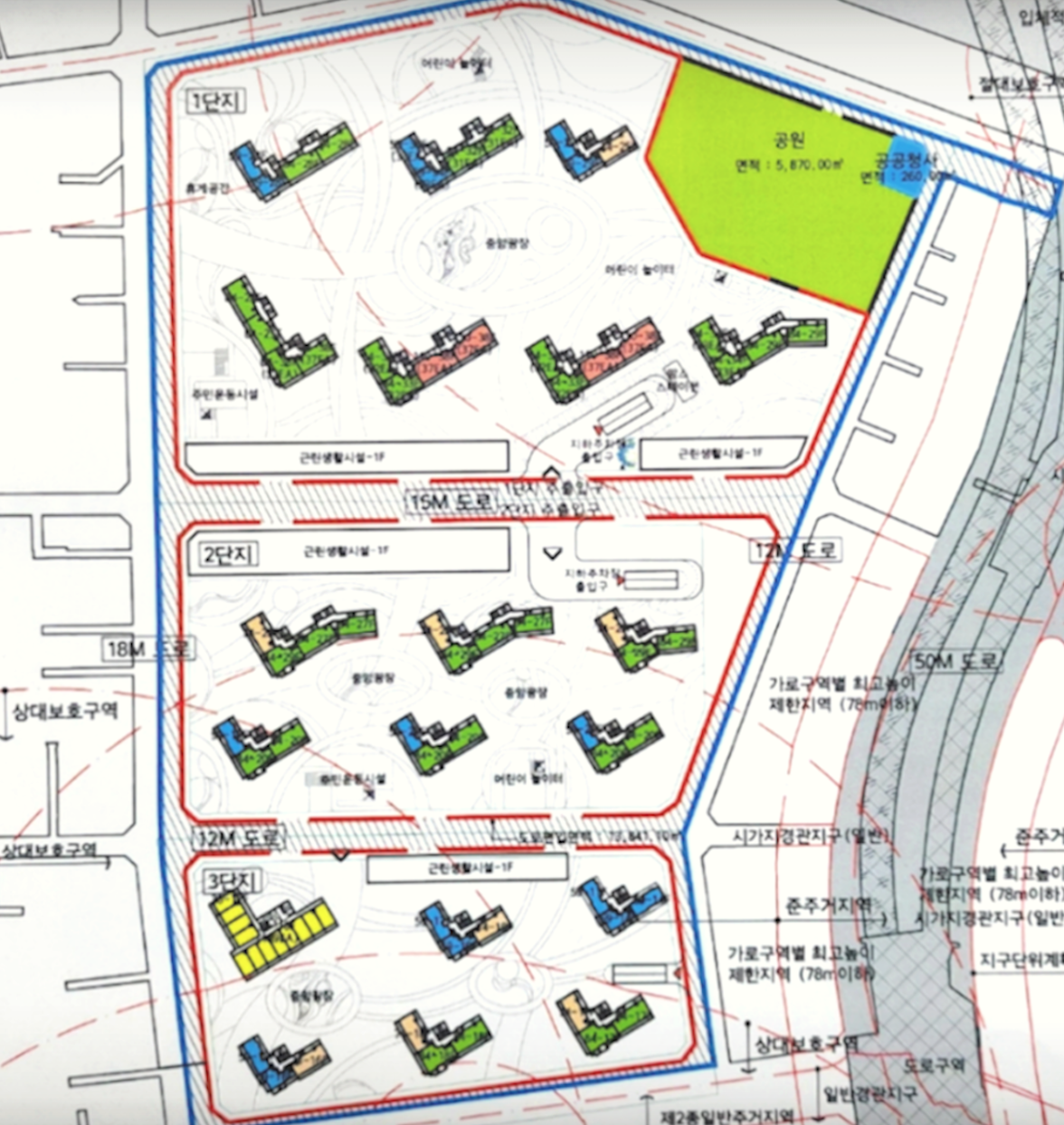
1) 사업 규모, 사업성
현제 계획 1818여세대의 대단지 계획하고 있으며
조합원 약 1068로 전체 대비 58% 정도의 비율을 보이고 있는데
최근 초기 구역들이 60~70%까지 높은 것을 감안하면 상대적으로 양호한 사업성을 가지고 있습니다.
2) 역세권, 평지
부산 중심 지하철 1호선 동래역 역세권 이고
산이 많은 부산에서도 많지 않게 구역 전체가 평지로 되어 있어
단지의 배치가 자유로워 토지 이용이 효율적이며
향후에는 단지 이동성 및 접근성의 장점도 가지게 됩니다.
3) 학교, 학군, 사직동 학원가
미남초, 내성중 가까이 있는 초품아, 중품아 단지이고
여고중, 사직중, 사직고 동인고, 사직여고등 여러 우수학교들이 사직동에 위치하여
전통적 우수 학군을 가진 곳으로 알여져 있으며
게다가, 종합운동장역부터 사직역으로 이어지는 사직동 학원가는
서울의 대치동처럼 많은 우수 학원들이 밀집해 있어 타 지역에서도 찾아오는 곳으로
좋은 학군과 교육 환경을 가지고 있습니다.
4) 실거주 환경 : 좋은 상권, 구청, 온천천
많은 병원과 다양한 상가들이 밀집해 있는
동래구 최대 상권 동래역 상권, 명륜1번가 상권의 이용이 편리하고
도보거리 대형마트 메가마트 동래점이 있고 3분여 거리에는 롯데백화점도 있어 좋고
동래구청 도한 도보 거리에 있어 주거 인프라가 우수합니다.
또한,
도보 3분여로 동래구민이 사랑하는 아름다운 온천천을 누릴수 있어
좋은 자연 환경 역시 함께 있습니다.


4. 사직4구역 재개발 : 계획된 각 타입별 세대수
아직 초기 진행으로 향후 심의 과정에서 타입별 세대수는 조금 변동이 될수 있습니다.


5. 사직4구역 재개발 : 주요 간략 특징
* 시세 좋고, 실거주 좋고, 학군 좋은 사직동
- 동래역 역세권, 평지, 온천천, 초품아, 중품아
- 온천천, 우수한 동래역 주변 상권





사직4구역 재개발 : 주요 진행 사항 & 예상 일정 체크등 추가 정보는 아래 페이지를 참고 부탁드립니다.
(구역지정>조합설립 중) 사직4구역 : 특징, 입지, 진행 상황 & 소액 매물 : 부산 재개발
안녕하세요 로이의렛츠부동산 입니다. JAK 제이에이케이 부산 부동산 중개법인(주)은 부산 최초로 재개...
blog.naver.com
사직4구역 및
부산 전역 재개발에 대해 궁금하신 사항은 방문 또는 연락주시면 자세히 설명 드리겠습니다.



고맙습니다.
건강한 하루 하루 되십시오.
입주권 및 분양권을 비롯하여
부산 경남 건물 토지 상가 주택 등 부동산 물건 투자 및 물건 접수 받습니다.

[ 부산, 양산, 경남 / 상가 / 건물 / 토지 / 재개발 / 재건축 전문으로 신속하고 정직하게 거래 합니다. ]
[ 매수 / 매도 / 임대 물건 접수 받습니다. ]
'렛츠부동산 > 재개발' 카테고리의 다른 글
| 부산 해운대 중동5구역 재개발 : 최저 매물 & 상황, 일정 (1) | 2025.03.25 |
|---|---|
| 감만1구역 재개발 : 타입별 최저 매물 & 철거 진행 소식 (0) | 2025.03.24 |
| 망미5구역 재개발 : 구역 지정 고시 소식, 일정 & 매물 (0) | 2025.03.21 |
| 사하구의 대장 괴정5구역 재개발 : 최근 소식, 일정 & 현 최저 매물 (0) | 2025.03.20 |
| 광안5구역 재개발은 조합 설립 추진위 신청하고 설립 진행중 & 매물 (0) | 2025.03.19 |

