글
(우수입지 : 역세권) 사직4구역 재개발 : 조합설립 이후 일정, 진행 및 소액 매물

안녕하세요
입지좋은
사직4구역 재개발 : 진행 소식 및 소액 매물 소개해 드리겠습니다.
동래역 역세권
사직4구역 재개발 :
정비구역 지정 고시에 이어 조합설립인가까지 득하고
재개발 사업의 본격적인 진행을 위해 가장 중요한 파트너 시공사 선정 절차를 앞두고 있으며
시공사 선정이 되면, 건축, 교툥, 교육등 포함된 통합심의를 준비하게 됩니다.



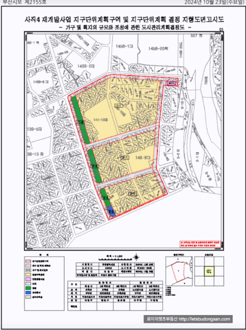
1. 재개발 사업 입지 및 전반 개요 : 사직4구역 재개발 :
1) 사업규모 / 사업성
전체 14개동, 1712세대의 대단지로 계획하고 있으며
전체 세대수 대비하여 조합원은 비율은 약 61.6% 정도로
최근의 높은 비율과 비교하여 상대적으로 낮아 양호한 사업성을 가지고 있습니다.
2) 핵심특징1 : 동래역 역세권 + 평지
부산의 중심 지하철 1호선 동래역 역세권으로
동래역은 동래구의 중심적인 위치를 가지고 있습니다.
산이 많아 평지가 많지 않은 부산에서 전체 구역 자체가 평지로 구성되어
단지의 배치를 효율적으로 가능하여 토지의 이용도가 좋고
향후는, 단지의 내외부 이동성 및 접근성에도 큰 장점을 가지게 됩니다.
3) 핵심특징2 : 사직동 학원가 + 우수 학군
미남초, 내성중 인접한 초품아, 중품아 단지가 되고
여고중, 사직중, 사직고, 동인고, 사직고등 여러 우수 학교들이 사직동에 위치해 있는
전통적 우수 학군을 보유하고 있어 학부모님들의 선호도가 높습니다.
또한, 종합운동장역에서 사직역으로 이어지는
사직동 학원가는
질좋은 학원들이 집중적으로 몰려 있어 서울의 대치동처럼 찾아오는 학원가로 인기가 높아
좋은 학군과 좋은 교육 환경을 가지고 있습니다
4) 온천천 + 좋은 실거주 환경
도보 3여분이면 동래구민이 사랑하는 아름다운 온천천 누릴수 있어
산책과 가벼운 운동 등 할수 있는 좋은 자연환경을 가지고 있습니다.
주변 상권 인프라는
많은 병원과 상가들이 밀접해 있는 동래 최대 동래역 상권, 명륜1번가 상권이 인접해 편리하고
대형마트 메가마트가 도보 거리에 있고, 차량 3분이며 롯데백회점 동래점의 이용도 좋으며
동래구청도 도보 거리에 있어 전바 주거 인프라가 우수 합니다.



* 주변 상황 입지적 특징 간략


2. 현재 가능한 매물 소개 : 사직4구역 재개발 :
그럼, 동래역 역세권
사직4구역 재개발 : 최저 매물 소개 드리겠습니다.


3. 계획된 각 타입별 세대수 : 사직4구역 재개발 :
아직 초기 단계로
향후 사업 진행과정에 있어 조금 변동이 있을수 있음을 감안하여 보시기 바랍니다.


4. 재개발 사업 주요 특징 : 사직4구역 재개발 :
- 동래역 역세권, 평지, 온천천, 초품아, 중품아
- 온천천, 우수한 동래역 주변 상권
- 시세 좋고, 실거주 좋고, 학군 좋은 사직동




사직4구역 재개발 : 재개발 사업 진행 상황 & 예상 일정 : 등 추가정보는 아래 페이지를 참고 부탁드립니다.
https://blog.naver.com/nackyeop/223945716241
(동래역) 사직4구역 재개발 : 작은 매물 소개 & 시공사 선정 앞둔, 예상 일정
안녕하세요 로이의렛츠부동산 ( JAK 제이에이케이 부산 ) 입니다. 오늘은 입지좋은 사직4구역 재개발 : ...
blog.naver.com
사직4구역 및
부산 전역 재개발에 대해 궁금하신 사항은 방문 또는 연락주시면 자세히 설명 드리겠습니다.


고맙습니다.
건강한 하루 하루 되십시오.
입주권 및 분양권을 비롯하여
부산 경남 건물 토지 상가 주택 등 부동산 물건 투자 및 물건 접수 받습니다.

[ 부산, 양산, 경남 / 상가 / 건물 / 토지 / 재개발 / 재건축 전문으로 신속하고 정직하게 거래 합니다. ]
[ 매수 / 매도 / 임대 물건 접수 받습니다. ]

