글
역세권 사직4구역 재개발 : 조합설립 진행 일정 & 현 최저 매물

안녕하세요
동래역 역세권
대단지 사직4구역 2025년 진행 일정 & 현 최저 매물 소개해 드리겠습니다.
조합 설립 중인
사직4구역 재개발 은 조합설립을 위해 최근 조합설립 추진위 승인을 받았습니다.



동래역 역세권
입지 좋은 사직4구역 은
학군 좋고, 실거주 좋아, 시세도 좋은 동래구 사직동에 위치하며
동래구 중심 동래역 역세권 대단지로 주변 환경 좋고 입지 우수해 기대 되는 재개발 구역입니다.
[ 위치, 입지 특징 ]
현재로도 미래로도 우수한 입지를 가지고 있습니다.

[ 역세권 / 학교 / 사직동 학원가 ]
부산 메인 지하철 1호선 동래역 역세권 (도보 5분여) 단지로
미남초, 내성중 인접한 초품아, 중품아 단지이며
사직동은 동인고, 사직고, 사직여고 등 좋은 학교 포진한 전통적 학군 우수지역으로
종합운동장역 부터 이어지는 사직동 학원가는 양질의 학원들이 밀집해 있어 유명하며
타 지역에서도 찾아오는 곳으로 자녀들에게 좋은 환경이 될 수 있습니다.

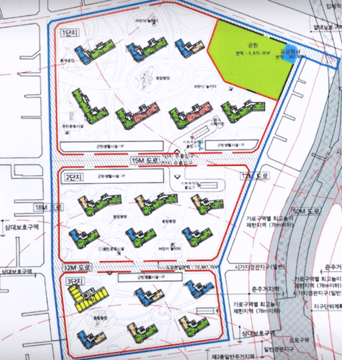
[ 사업규모 / 사업성 / 평지 ]
약 1600여세대의 대단지로 현재 계획중에 있으며
최근 초기 재개발 지역들이 조합원 비율이 상당히 높은것과 비교를 하면
전체 세대수 대비 조합원 비율 58% 정도로 앙호하여 사업성 및 향후 비례율이 기대 됩니다.
또한,
산이 많아 평지가 많지 않은 부산에서 구역 전체가 평지로 되어 있어
단지의 배치 및 활용이 좋으며 향후에는 단지내 이동성 및 접근성도 큰 장점을 가집니다.
[ 실거주 환경 ]
많은 병원과 다양한 상가들이 밀집되어 있는
동래구 최대 상권인 동래역 상권과 명륜1번가 상권의 이용이 편리하고
메가마트 동래가 도보거리에 차량 3분여에 롯데백화점과 롯데마트도 있어서 주거 인프라가 우수하며
동래구청 역시 가까이 있어 좋습니다.


그럼, 조합설립중인
사직4구역 재개발 : 최저 소액 매물 정리해 드리겠습니다.


동래구 우수한 입지
역세권 사직3구역 현재 계획된 타입별 세대수 정리 드리겠습니다.
최근 초기 재개발 구역들이 조합원 비율이 대단히 높은것과 비교를 하면
조합원 비율이 58% 상당히 양호하여 사업성 및 향후 비례율 역시 기대를 해볼만 합니다.


동래역 역세권
사직4구역 재개발 입지적 주요 특징 다시 정리하였습니다.
- 실거주 좋고 학군 좋은 사직동
- 동래역 역세권, 평지, 온천천, 초품아, 중품아
- 온천천, 우수한 동래역 주변 상권




2025년 진행 ( 조합 + 시공사 )
사직4구역 재개발 현재까지의 주요 진행 & 이후 절차 정리 등 추가 정보는 아래 페이지를 참고 부탁드립니다.
(우수입지) 사직4구역 재개발 : 조합추진위 승인 소식 및 일정 & 현 최저 매물
안녕하세요 로이의렛츠부동산 입니다. JAK 제이에이케이 부산 부동산 중개법인(주)은 부산 최초의 부동...
blog.naver.com
사직4구역 및
부산 전역 재개발에 대해 궁금하신 점은 방문 또는 연락 주시면 자세히 설명 드리겠습니다.


고맙습니다. 따뜻한 하루 하루 되십시오.
부산 전역 재개발 입주권 및 분양권을 비롯하여
부산 경남 건물 토지 상가 주택 등 부동산 물건 투자 및 물건 접수 받습니다.

[ 부산, 양산, 경남 / 상가 / 건물 / 토지 / 재개발 / 재건축 전문으로 신속하고 정직하게 거래 합니다. ]
[ 매수 / 매도 / 임대 물건 접수 받습니다. ]

