글
부산 촉진3구역 재개발: 시공사해지가결 소식 & 현 매물 plus 촉진4구역
안녕하세요.
새로운 시공사 선정
시민공원 촉진3구역 재개발 시공사 계약 해지 소식과 현 가능 물건을 소개해 드리겠습니다.

시민공원 촉진3구역 재개발 은 최근 조합원 총회를 통해 시 시공사와의 계약 해지를 가결 하였습니다.


그럼,
시민공원 촉진3구역 재개발 물건 정보 소개해 드리겠습니다.
재개발 투자에서 한번 투자 하시면 장기를 고려하며 미래가치를 크게 생각하시는 분들
똘똘한 한채를 고려하고 계시는 분이시라면
시민공원 촉진3구역 재개발 물건을 고려하실수 있습니다만 대장주인 만큼 투자 금액이 다소 큽니다.

추가로,
바로 접해 있는 시민공원 촉진4구역 재개발 물건 정보 도 같이 소개해 드리겠습니다.
촉진4는 입지 진행대비 하여 프리미엄 고려시 가성비가 좋아 보이는 곳으로 말씀드리는 곳 입니다.



새로운 시공사 선정
시민공원 촉진3구역 재개발 은
자타공인으로 부산의 중심 도심 부산 내륙의 재개발 대장주로 인정받고 있습니다.
시민공원을 남서향으로 영구조망으로 바라 보고 있으며 연결브릿지를 통해 시민공원과 이어져 있고
시민공원 주변의 재개발 구역들중에 3500여가 넘는 가장 큰 세대수를 가지고 있습니다.
또한,
특별건축구역으로 지정이 되어 진행되고 있으며
이는 건축비 상승으로 조합원에게 부담이 조금 늘수 있습니다만
그 위치적 가치에 더하여 부산 내륙의 랜드마크 아파트로 자리매김할 수 있을 것으로 예상이 됩니다.
그렇게 되면
향후 들어설 아파트의 가치는 더욱 상승이 될 것입니다.
진행상황으로는
2021년 4월 28일 사업시행계획인가가 신청 되었으며
최근 3월 교육영향평가 심의를 통과 하여 사업시행계획인가 고시가 다가와 있습니다.
추가로, 최근 소식에서 전해드린 것처럼 새로운 시공사 선정 절차가 하반기에 진행될 것으로 보입니다.

시공사 해지 총회 이후 삼성 래미안등 여러 시공사가 관심을 보이고 있고
이에 더욱 기대가 모아지고 있습니다.


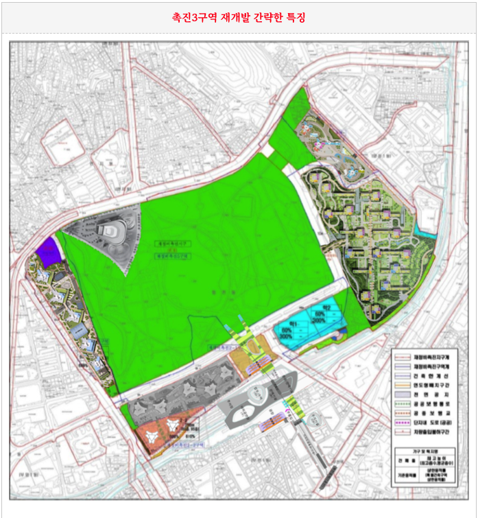
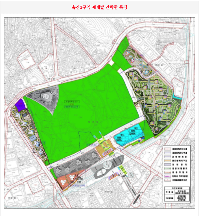
새로운 시공사 선정 촉진3구역 재개발의 간략한 특징 입니다.
- 부산 내륙의 대장주, 부산중심, 대단지, 시민공원, 특별건축구역







부산 대장주 중의 하나인 촉진3구역 재개발 은
공공재인 시민공원의 바로 접하고 있어 용적률 및 최고 높이 등에 어려움이 있었지만
특별건축지정으로 해당 문제를 해결하여 진행이 되고 있어 외관등이 더욱 기대가 되고 있습니다.
부산에서는 공동주택중 두번째 특별건축구역으로 지정입니다.


부산 대장주 중의 하나인 촉진3구역 재개발 의 각 타입별 세대수 입니다.
전체 동은 13층부터 60층까지 배치하여
전체적으로 시민공원 조망을 최대한 볼수 있도록 고려하여 배치할수 있도록 설계되어 있으며.
또한,
전체 세대수와 조합원 숫자등을 비교하면 조합원 분들은 84타입 이상은 받으실수 있을 것으로 보이며
조합원분들의 1/2은 큰 평형도 고려할 수 있습니다.
향후, 새로운 시공사가 선정이 되면 설계가 다시 이뤄질것으로 세대수 변경이 조금 있을수도 있습니다.



부산 대장주 중의 하나인 촉진3구역 재개발 진행과정 등 추가적인 정보는 아래 페이지를 참고 부탁드립니다.
부산 촉진3구역 재개발: 시공사해지가결 소식 & 현 매물 plus 촉진4구역
안녕하세요. 로이의렛츠부동산 ( 제이에이케이부동산중개법인 ) 입니다. 오늘은 새로운 시공사 선정 시민공...
blog.naver.com
'렛츠부동산 > 재개발' 카테고리의 다른 글
| 양정3구역 재개발 (철거앞둔) 84 TYPE 매물 (0) | 2022.05.31 |
|---|---|
| 우암2구역 재개발 도시계획위원회 심의 소식과 각 매물 안내 (0) | 2022.05.30 |
| 광안5구역 재개발 최저 주택부수토지 & 소액 매물 (0) | 2022.05.27 |
| 광안6구역 재개발 : 최근소식 & 소액 매물 (0) | 2022.05.26 |
| 광안A구역 재개발 ( 구 망미2구역 ) 소식과 매물 (0) | 2022.05.25 |



