글
복산1구역 재개발 주민설명회 : 동래구 대단지 재개발
안녕하세요.
주민 설명회 등이 예정되어 있는 등 잰걸음을 하고 있는
동래구 복산1구역 재개발 최근 소식을 좀 전달해 드리도록 하겠습니다.



복산1구역 재개발은

이에 사업시행인가를 첫 단계인
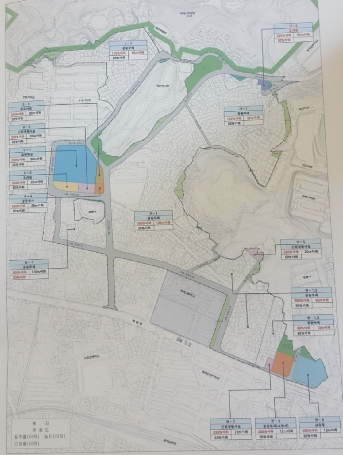
정비구역 및 정비계획 변경지정(안) 공람 공고가 나왔습니다.

[ 복산1 재개발사업 정비구역 및 정비계획 변경지정(안) 공람․공고와 주민 설명회 개최 ]



이번
복산1구역 변경안이 공람 공고가 지나고 정식 고시가 나면 10월에 경관 심의가 진행될 예정입니다.


복산1구역 재개발 현재 매수 타이밍
많은 분들이 걱정하시는 것 보다는 한걸음 한걸음 진행이 되고 있습니다.
1. 현재
사업시행인가가 된다면 지금까지의 재개발 사업 진행에 모든 우려가 벗어나게 되고
그러면 현재의 낮은 시세는 크게 출렁일 수 있을 것으로 예상이 됩니다.
이에 따라 현재의 타이밍 역시도 좋은 선택이 될 수 도 있습니다.
물론,
2. 이후
조금 더 시세가 상승하더라도 감정가를 보고 판단하시는 것도 또하나의 확실한 선택이 될 수 있습니다.
스스로 고민하시고 잘 판단하셔야 될 것 같습니다.


복산1구역 재개발은


그럼
복산1구역 물건 소개해 드립니다.
|
복산1구역 재개발 매수 가능 물건 |
|||
|
종류 |
빌라 |
연립 |
빌라 |
|
면적 |
20.5평 |
14.69평 |
22.9평 |
|
임대현황 |
- |
5500 |
8000 |
|
인수가 |
2억 2000 |
1억 1500 |
1억 8000 |
|
특징 |
내성초등학교 인근 실입주 가능 |
소액물건 |
버스정류장인근 |
|
위 물건에 관심이 있으신 분들은 연락주시면 자세히 설명 드리겠습니다. |

복산1구역 재개발의 특징을 간략히 살펴 보겠습니다.




복산1구역 재개발에 관심이 있으신 분들은 연락주시면 자세히 설명 드리겠습니다.




고맙습니다.

[ 상가 / 주택 / 재개발 / 재건축 전문으로 신속하고 정직하게 거래 합니다. ]
[ 매수 / 매도 / 임대 물건 접수 받습니다. ]
'렛츠부동산 > 재개발' 카테고리의 다른 글
| 우암 해양클러스터 뉴수 : 우암1,2 재개발, 감만1구역 재개발 (0) | 2019.09.06 |
|---|---|
| 우동3구역 재개발 사업시행인가 신청 접수완료 (0) | 2019.09.06 |
| 북항조망 우암2구역 재개발 조합원 임시총회 (분양가변동) (0) | 2019.09.04 |
| 동구 조망대장 " 초량2구역 재개발 " 소액토지 (0) | 2019.09.03 |
| 역세권+대단지 " 대연3구역 재개발 " 최저프리미엄 8000 급물건 : 대연동 재개발 대장 (0) | 2019.09.01 |

