글
복산1구역 재개발 소식과 조합원 물건
안녕하세요.
최근 대의원회의을 한
복산1구역 재개발의 대의원회의 소식과 물건을 소개해 드리도록 하겠습니다.

지난 5월 29일에 복산1구역 대의원회의의 주요 내용은

조합장 변경으로 많은 분들이 조금 의구심을 가졌었지만
사업추진단장으로 계속 업무를 진행한다고 하며 GS 관계자도 나와서 더욱 사업 진행에 문제 없이 열심히 하겠다는 의지를 내 보여서
앞으로도 문제 없이 잘 진행되리라는 생각이 듭니다.



복산1구역 재개발 의 향후 진행을 예상해 보면


여전히 복산1구역 재개발의 진행에 물음표를 가지신 분들에게는
여러 심의가 진행되는 과정속에서
복산1구역 재개발 진행의 불확실성은 다소 많이 걷히게 될 것으로 보입니다.
그리고 그에 따라 물건들 역시도 조금은 가격 변화가 생길 것으로 예상이 됩니다.

그럼 궁금해 하시는
복산1구역 재개발 물건 정보를 먼저 소개해 드리겠습니다..
|
복산1구역 재개발 좋은 물건 |
||
|
종류 |
2층 주택 |
|
|
위치 |
내성초등학교와 동래고등학교 사이에 위치한 평지 지역 |
|
|
현재 임차상황 |
전세 5000 |
1층 주인거주, 2층 전세 |
|
인수가 |
1억 5000 |
|
|
특징 |
1. 예상 감정가를 산출시에 프리미엄이 낮아 추천드립니다. 2. 매매후 1층도 추가 임차가 가능하여 투자금액을 좀더 회수 가능합니다. |
|
|
복산1구역 재개발 좋은 물건2 |
||
|
종류 |
빌라 |
|
|
현재 임차상황 |
전세 4000 |
2층 |
|
인수가 |
1억 1000 |
|
|
특징 |
소액투자 금액으로 장점 |
|
블로그로 모든 정보 드리는 못하는 점 양해 부탁 드리며
위치와 예상 감정가와 프리미엄등은 전화 주시면 자세히 더 설명 드리겠습니다.
복산1구역 재개발의 사업 특징을 간략히 정리해 보면
동래구의 대장주가 될 충분한 힘을 가지고 있음을 느끼실수 있습니다.
시간이 되신다면 현장을 한번 방문해 보실 것을 추천 드립니다.
그다지 경사가 많지도 않으며 여타 다른 재개발 구역과는 다른 느낌을 받으실 수 있습니다.



향후 주거 단지로서 아파트등 시장의 방향은
이제 아파트등 주거단지는 단순한 위치의 경쟁 뿐만아니라
질적인 경쟁으로 그 우위점을 가진 곳들만이 새로운 시세를 만들고 그렇지 않은 곳은 가격의 변화가 크지 않는
양극화가 계속적으로 진행중에 있습니다.
이에, 복산1구역은 가장 어려운 점이긴 했지만 문화재를 껴안은 문화재 아파트로
그 질적 경쟁에서도 좋은 면을 가진 곳으로 큰 기대가 되는 곳입니다.
재개발 진행에 어려움을 준 그 원인이 이후에는 더 큰 장점으로 효과를 나타낼것이라는 양면을 가지고 있습니다.

그리고
아직 확정된 부분은 아니며 사업시행인가시에
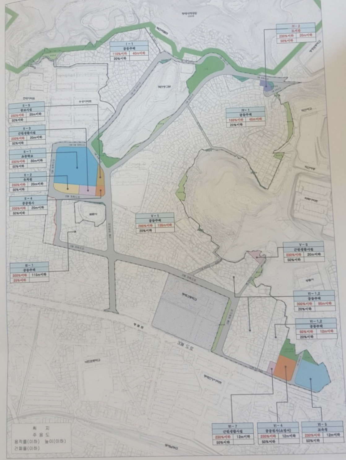
일부 조정될 것이지만 현재까지 나타난 복산1구역 재개발의 타입별 세대수소개해 드립니다.

복산1구역 재개발에 관심이 있으신 분들은 연락주시면 자세히 설명 드리겠습니다.






감사합니다.

[ 상가 / 주택 / 재개발 / 재건축 전문으로 신속하고 정직하게 거래 합니다. ]
[ 매수 / 매도 / 임대 물건 접수 받습니다. ]
'렛츠부동산 > 재개발' 카테고리의 다른 글
| 두산위브더제니스하버시티 75B 101동 고층 (0) | 2019.06.11 |
|---|---|
| 대연3구역 재개발 84A 프리미엄 9700 (0) | 2019.06.11 |
| 이편한세상 시민공원 일반분양 모집공고 (0) | 2019.06.08 |
| 두산위브더제니스하버시티 당첨자 체크사항(시세,전망) (0) | 2019.06.06 |
| 엄궁3구역 재개발 관리처분계획인가고시 & 입주권 (0) | 2019.06.06 |

