광안3구역 재개발 최근상황과 물건
안녕하세요.
사타통과 > 정비구역지정신청 된
광안3구역 재개발 예정지 시세 착한 주택부속토지 신축원룸등 물건을 소개 해 드리겠습니다.

광안3구역 재개발은 최근 진행 소식 입니다.
그동안 어렵게 어렵게 진행되어 오던 2가지 협의가 진행이 되어 구역 지정까지 청신호가 켜졌으며
2022년 중순경에는 구역 지정이 될 것으로 예상이 되고 있습니다.

또한,
그동안 GS건설, 포스코 건설에 이어
삼성물산의 래미안 역시 광안3구역 재개발에 도전을 밝혀 예비조합원분들의 기대가 높아지고 있습니다.
래미안은 부산에서 가장 선호도가 높고 브랜드 프리미엄 역시 가장 높습니다.
- 가치 있는 곳에는 언제나 래미안



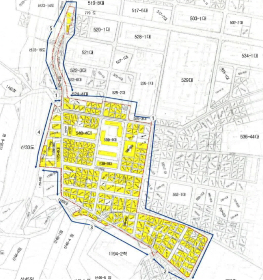
수영구 광안3구역 재개발 예정지 는
광안역을 도보로 이용가능한 7~8분 준역세권 지역 이며
호암초등학교, 수영중학교 등이 바로 접해 있는 초품아, 중품아로 학모님들의 선호도가 높을 것이며
바로 아래에는 호암근린공원이 위치해 있고
도보로 광안 해수욕장을 이용 가능한 장점을 가지고 있는 모든 분들이 인정하는 입지 좋은 곳 으로
특히나,
입지좋고 시세도 좋은 수영구에 위치하고 있다는 것이 가장 큰 장점입니다.
진행상황으로는
이미 사전타당성통과 > 정비구역지정 신청 까지 진행이 되었기에
사실상 광안동의 너무 많은 예정지들과는 다르게 상대적으로 안정적으로 보입니다.
빠른 추진위의 대처와 조합원분들의 열의를 감안하면
내년 2022년 중순경 정비구역 지정이 예상되고 이후 조합 설립 그리고 시공사 선정으로 진행이 됩니다.


그럼 최근 진행 소식에 이어, 궁금하신
광안3구역 재개발 예정지 물건 정보를 소개해 드리겠습니다.
- 주택부속토지는 보유 양도시에 주택수에 카운트가 되지 않으며 (취득세와 종부세시에는 주택수에만 )
- 다세대 물건은 공동주택가격 1억 언더로 다주택 상관없이 취득세 1.1%가 됩니다 ( 구역지정전이므로 )



광안3구역 재개발 예정지 가 위치한
부산 수영구는
전국 최고의 해수욕장중에 하나인 부산 광안리 해수욕장 바닷가을 도보로 이용가능하게 인접해 있으면서도
중심도심 만큼의 실거주 편리함을 그대로 누릴수 있는 장점을 가진 지역으로
부산에서 가장 시세가 높은 곳 중 하나 입니다.
광안동은
수영을 가로지르는 대로인 기존 수영로의 아랫쪽(광안쌍용예가등)이 시세를 이끌고 있었습니다.
수영대로의 아랫쪽은 광안해변 접근성과 평지에 지하철 접근성에서 장점을 가지고 있지만
조금은 관광지적인 느낌을 주는데 부분이 있습니다.
반면에,
수영대로의 윗쪽 부분은 아파트 단지들보다 소형 단지, 빌라, 주택가들이 있어 주거환경은 상대적으로 윗쪽에 비해 좋지 않았습니다만
최근, 광안2구역 (광안SK), 광안자이, 에일린의 뜰 로 이어지는 약 2500여세대로 조성이 되는 것과 함께
광안3구역까지 진행이 되면 4개단지 모두 3600여세대의 새로운 신축 대단지 주거 타운이 형성되게 되어
광안동 주거단지의 변화가 발생하고 있습니다.
물론, 광안역 아래의 새로운 예정지들의 진행에 따라 변화가 있을수도 있겠습니다.
수영로 윗쪽 부분의 신축 아파트 단지 벨트 리스트 입니다.


아직 초기 상태이지만
광안3구역 재개발 예정지의 현재까지의 진행상황등을 간략히 정리하였습니다.
주변의 광안2구역 등 재개발로 인한 시세상승을 봐왔기 때문에
광안5구역의 조합원분들은 열의가 높고
추진위 역시 발빠르게 대응을 하여 속도있게 진행이 되고 있습니다.
정비구역 지정을 위한 사전타당성 심의를 통과했고 정비구역까지 신청이 완료된 곳으로
수영구 광안동의 아주 많은 재개발 예정지와는 상당한 진행 시간의 차이가 나는 것을 물론
상대적으로 불확실성이 낮습니다.


광안3구역 (가칭) 재개발 예정지 의 정비계획입안에서 현재 예상하는 타입별 세대수등 아래 페이지를 확인 부탁드립니다.
래미안기대 " 광안3구역 재개발 : 진행상황 체크 " + 현 가능 매물
안녕하세요. 로이의렛츠부동산 ( 제이에이케이부동산중개법인 ) 입니다. * 실시간 매물 정보는 위 단톡방을...
blog.naver.com


