감만1구역 재개발 상황과 매물
안녕하세요.
감만1구역 재개발 최근 가처분판결 소식 과 각 타입별 물건을 업데이트 해 드리겠습니다.

최근소식인
감만1구역 재개발의 가처분 판결소식과 이후 상황등을 정리해 드립니다.


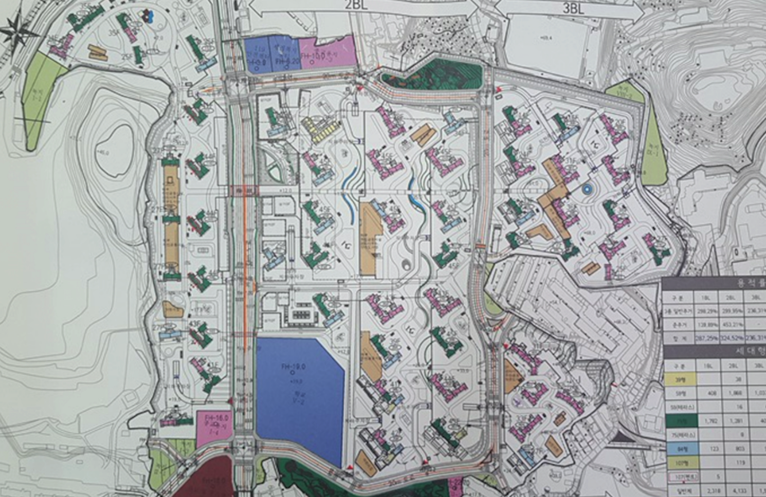
감만1구역 재개발 은
부산에서 관리처분을 간 구역들중에 가장 시세(프리미엄)가 낮다는 가장 큰 장점 역시 가지고 있고
시세가 낮기에 인수가 역시 상대적으로 낮은 소액 투자처이기도 합니다.
그 위치로는
서면과 부산역 등까지 불과 15분 정도로 접근성이 좋으며 광안대교등을 통해 해운대로의 접근도 용이 합니다.
감만1구역 있는 뉴스테이라는 단점과 감만동이라는 조금은 오래되고 낡은 동네이기는 하지만
신도시급의 대단지가 들어서게 되면 주변일대가 엄청나게 변경이 되어 실거주적으로 아주 개선될 것이고.
아름다운 북항 일대의 바다조망을 누릴수 있는 대규모의 아파트가 될 것 입니다.


최대단지 감만1구역 재개발의 특징을 간략히 정리하였습니다.


그럼
감만1구역 재개발 각 타입별 물건을 소개해 드리겠습니다



감만1구역 재개발의 진행상황을 간략히 체크 합니다.
위에서 언급드린 뉴스테이, 일반분양 어떤 방식이든 장단점을 가지고 있고
어떤 것에 점수를 더 줄지는 조합원 분들의 뜻에 따르는 것이기 때문에
어떤 방식으로는 빠르게 잘 정리가 되어서
현재의 나뉘어져 있는 조합내부를 다독거려 소모적인 논쟁을 마무리 하고 하루 빨리 더 이상의 지연없이 진행이 되기를 바랍니다.



감만1구역 재개발의 각 타입별 세대수 및 조합원 분양가 및 기타 추가 정보는 아래 페이즈를 통해 확인하시면 되십니다.
https://blog.naver.com/himang1974/222484770771
초대단지 감만1구역 재개발 가처분 소식과 특징 그리고 현매물
안녕하세요. 로이의렛츠부동산 (제이에이케이부동산중개법인) 입니다. 한국은행 금융통화위원회는 어제 기...
blog.naver.com
감만1구역 재개발에 관심이 있으신 분들은 연락주시면 자세히 설명드리겠습니다.

고맙습니다. 건강한 하루 하루 되십시오
부산전역 재개발, 분양권, 상가, 주택 등 물건 투자 접수 받습니다.
양산 상가, 주택, 토지 물건 접수 투자 받습니다.
[ 부산, 양산 / 상가 / 주택 / 재개발 / 재건축 전문으로 신속하고 정직하게 거래 합니다. ]
[ 매수 / 매도 / 임대 물건 접수 받습니다. ]
